ARCHEOLOGIA CLASSICA anno acc 2016 17 Origine e

































- Slides: 33
ARCHEOLOGIA CLASSICA anno acc. 2016 -17
Origine e sviluppo dell’architettura residenziale di Pompei sannitica
Abitazioni con prospetti in opera quadrata e muri divisori in opera a telaio, entrambi in calcare del Sarno. Caratteristica pianta ad ampi ambienti centrali ( «atrium» )con vani distribuiti tutt’intorno. Abitazioni ad atrio compluviato o « tuscanicum» . Pavimenti in «signinum» , più tardi in « tessellatum» .
Le case « ad atri calcarei»
Il tipo di casa «ad atri calcarei» di Pompei viene a coincidere con i modi dell’edilizia privata di Roma e dell’Italia tirrenica.
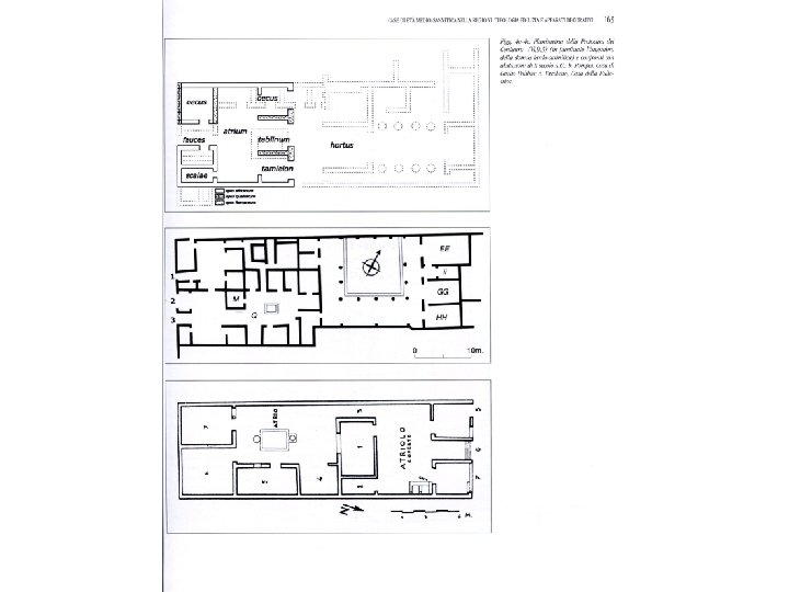
Roma, . Le Case alle pendici del colle Palatino
Pompei, Case sannitiche.
Pompei. Case « a schiera» ad atrio mancante dell’impluvio.
Sviluppo dell’architettura residenziale di Pompei sannitica. La casa standard della grande Pompei di II secolo a. C.
La Campania è accanto al Lazio la principale regione italica dal punto di vista economico e culturale. Pompei esemplifica il carattere insediativo di una città italica. Generale aspetto ellenistico assunto da Pompei analogamente ad altri centri italici di area medio tirrenica. Generale «ellenizzazione» della Campania. Ampliamento delle abitazioni ad atrio compluviato mediante ambienti dal nome grecanico (peristili ovveor cortili colonnati ed ambienti ad esso collegati, come «oeci» , «exedrae» , «diaetae» ) secondo tipologie ellenistiche. Nelle grandi case, doppio atrio (di rappresentanza e di carattere privato). Facciate in blocchi di tufo in «opera isodoma» . Pareti interne in opera incerta. Pavimenti in «tessellatum» ed «emblemata» (tra fine II e inizi I sec. a. C. ). Il lusso ha dimensioni principesche (palazzi di Pella, palazzo di Verghina). Le case di Pompei per la loro grandezza non hanno corrispondenti nelle case private del mondo greco-ellenistico ( Delo, Atene, Priene).
Le facciate delle case sannitiche della Regio VI
Valenze sociali della casa romana Vitruvio VI, 5, 1 -2 I i 4 tipi di atrio: tuscanico, corinzio, tetrastilo, displuviato, testudinato Vitruvio VI, 3, 1 -2 Triclini autunnali e triclini estivi Vitruvio VI, 4, 2
Atrio tuscanico o compluviato
Atrio tetrastilo (con 4 colonne intorno alla vasca dell’impluvio)
Atrio corinzio (con molte colonne intorno all’impluvio)
Nei resti di Pompei si leggono 3 città, 3 «immagini urbane» , sovrapposte e intrecciate l’una all’altra, , specchi vivo di altrettante situazioni socio-culturali e concezioni dello spazio urbano: la città sannitica ellenizzata del II sec. a. C. , quella successiva alla fondazione della colonia romana nell’ 80 a. C. e infine la nuova fisionomia della città nel primo periodo imperiale
Nelle case di Pompei si leggono precise forme di autorappresentazione di persone, ceti, famiglie, in un preciso gioco di modelli offerti dalla grande aristocrazia romana, anche in una sorta di inscenamento di una propria «grecità» di cultura: la Grecia antica viene evocata in strutture simbolo(come «ginnasio» , «pinacoteca» ). La casa ad atrio era aperta sulla strada: da lì si poteva gettare uno sguardo sull’atrio, i clienti affluivano a frotte in casa per il ricevimento mattutino del «patronus» . Successivamente si assiste ad una svolta della funzione comunicativa degli ambienti. Lo spostamento del fulcro della casa ad atrio al peristilio e la pervasività del mondo mitologico della pittura che si dipana in tutti gli ambienti con funzione autorappresentativa. Già sul finire del I sec. a. C. le case urbane vengono provviste di cortili e peristili greci. Il ricevimento degli ospiti non si svolge più nell’atrio, ma nella parte interna della casa (gli ambienti di riunione sono posti lungo i portici colonnati del peristilio). Una casa con qualche ambizione disponeva di vari complessi di stanze: una sala da banchetto più grande ( «triclinium» ) ed una o due stanze da riposo ( «cubicula» ) per la conversazione privata. La molteplicità degli ambienti p permetteva all’anfitrione di ricevere i suoi ospiti in maniera diversa a seconda del loro numero e del grado di intimità, ma anche dell’ora del giorno e della stagione.