Design of Reinforced Concrete Structures 1 1 2

  • Slides: 25
Download presentation
Design of Reinforced Concrete Structures 슬래브 1 1 방향 슬래브 2 2 방향 슬래브

Design of Reinforced Concrete Structures 슬래브 1 1 방향 슬래브 2 2 방향 슬래브

Design of Reinforced Concrete Structures 슬래브 종류

Design of Reinforced Concrete Structures 슬래브 종류

1 방향 슬래브 Design of Reinforced Concrete Structures 설 계 t b=100 cm Typical

1 방향 슬래브 Design of Reinforced Concrete Structures 설 계 t b=100 cm Typical imaginary strip 1 m wide L b=100 cm t L

2 방향 슬래브 Design of Reinforced Concrete Structures 설 계 B w C S

2 방향 슬래브 Design of Reinforced Concrete Structures 설 계 B w C S D A L L/S 1 1. 5 2 4 w. S 0. 5 w 0. 835 w 0. 941 w 0. 996 w w. L 0. 5 w 0. 165 w 0. 059 w 0. 004 w Pi Behavior Two-Way Slab One-Way Slab

Plate Bending Theory

Plate Bending Theory

Direct Design Method (직접설계법)

Direct Design Method (직접설계법)

직접설계법 (Direct Design Method)

직접설계법 (Direct Design Method)

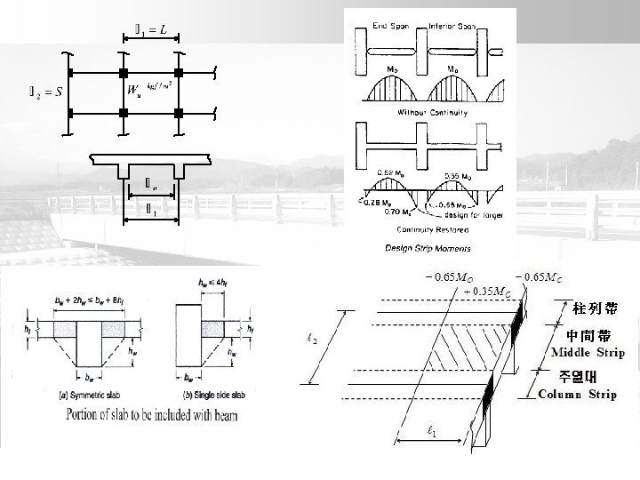
단부 등가기둥강성 0. 65 a 3 = 0 0. 35 M 0 0. 65

단부 등가기둥강성 0. 65 a 3 = 0 0. 35 M 0 0. 65 M 0 a 2 = 0. 63 a 1 = 0. 75 Column stiffness Slab stiffness Beam stiffness 0. 65 0. 35 0. 65

Column-strip moment, percent of total moment at critical section

Column-strip moment, percent of total moment at critical section

C. Direction Design Moment Coefficients

C. Direction Design Moment Coefficients

Distribution of Column-strip moment Mcolumn = Mbeam + Mslab = Mcolumn - Mbeam 중간대의

Distribution of Column-strip moment Mcolumn = Mbeam + Mslab = Mcolumn - Mbeam 중간대의 계수모멘트 Mmiddle = M - Mcolumn

2) Distribution for Total Static Moment MO Interior span : MO + M= 0.

2) Distribution for Total Static Moment MO Interior span : MO + M= 0. 35 MO Mmi = 0. 40(0. 35 MO ) +M - M = 0. 65 MO Mco = 0. 60(0. 35 MO ) Mbe End span: MO Msl Mmi= 0. 25(0. 65 MO ) Mbe M co= 0. 75(0. 65 MO ) Msl Mco Mbe -M Mmi Msl Mmi : moment for middle strip, Mco : moment for column strip Mco Mbe Mmi Msl

A A B B Flowchart for design sequence in two-way slabs and plates by

A A B B Flowchart for design sequence in two-way slabs and plates by the direct design method