Zkouen potrub pro odvod koue a tepla z
Zkoušení potrubí pro odvod kouře a tepla z pohledu výrobce Ing. Vilém Stanke
Výběr vzorku (projektové požadavky – ČSN 73 0810: 2005) Zkoušky podle ČSN EN 1366 -8 (a podle ČSN EN 1366 -1) Klasifikace podle ČSN EN 13501 -4
ČSN 73 0810: 2005 Požární bezpečnost staveb – Společná ustanovení Čl. 10. 2 Potrubí pro odvod kouře a tepla 10. 2. 1 • potrubí pro odvod kouře a tepla z více požárních úseků • potrubí pro odvod kouře a tepla z jednoho požárního úseku, které vede jinými požárními úseky • potrubí pro odvod kouře a tepla z jednoho požárního úseku
ČSN 73 0810: 2005 Požární bezpečnost staveb – Společná ustanovení Čl. 10. 2 Potrubí pro odvod kouře a tepla 10. 2. 1 • potrubí pro odvod kouře a tepla z více požárních úseků EIMULTI I. až V. stupeň požární bezpečnosti EIMULTI 30 v ostatních případech EIMULTI 60 • potrubí pro odvod kouře a tepla z jednoho požárního úseku, které vede jinými požárními úseky • potrubí pro odvod kouře a tepla z jednoho požárního úseku
ČSN 73 0810: 2005 Požární bezpečnost staveb – Společná ustanovení Čl. 10. 2 Potrubí pro odvod kouře a tepla 10. 2. 1 • potrubí pro odvod kouře a tepla z více požárních úseků • potrubí pro odvod kouře a tepla z jednoho požárního úseku, které vede jinými požárními úseky EIMULTI I. Až V. stupeň požární bezpečnosti EIMULTI 30 v ostatních případech EIMULTI 60 • potrubí pro odvod kouře a tepla z jednoho požárního úseku
ČSN 73 0810: 2005 Požární bezpečnost staveb – Společná ustanovení Čl. 10. 2 Potrubí pro odvod kouře a tepla 10. 2. 1 • potrubí pro odvod kouře a tepla z více požárních úseků • potrubí pro odvod kouře a tepla z jednoho požárního úseku, které vede jinými požárními úseky • potrubí pro odvod kouře a tepla z jednoho požárního úseku, aniž by procházelo jinými požárními úseky v závislosti na předpokládané teplotě odváděných horkých plynů E 300 single E 600 single postačuje E 30 bez ohledu na SPB zkušební metoda pr. EN 1366 -9
ČSN 73 0810: 2005 Požární bezpečnost staveb – Společná ustanovení Čl. 10. 2 Potrubí pro odvod kouře a tepla 10. 2. 2 POZNÁMKA Tlakové rozdíly užívané při zkouškách (500, 1000, 1500 Pa) značně převyšují skutečné poměry (50 – 250 Pa), takže potrubní systém ověřený pro 500 Pa nebo s menším tlakovým rozdílem lze považovat pro odvod horkých plynů za vyhovující.
ČSN 73 0810: 2005 Požární bezpečnost staveb – Společná ustanovení Shrnutí požadavků na potrubí pro odvod kouře a tepla z více požárních úseků EIMULTI 60 dostatečné 250 Pa max. 500 Pa
ČSN EN 1366 -8: 2004 Zkoušení požární odolnosti provozních instalací – Část 8: Potrubí pro odvod kouře 1 Předmět normy Plně rozvinutý požár Platí pouze pro požárně odolná potrubí A a B podle ČSN EN 1366 -1 Potrubí A musí být zkoušeno při tlaku 500 Pa (dle ČSN EN 1366 -1 300 Pa) Potrubí zkoušené podle ČSN EN 1366 -8 = potrubí C Pro potrubí C - stačí zkouška vodorovného, pokud zkoušky podle ČSN EN 1366 -1 byly ve i ho systém není využíván výhradně ve svislé aplikaci Pro potrubí z materiálů třídy reakce na oheň A 1 a A 2 Pouze pro čtyřhranná potrubí
ČSN EN 1366 -8: 2004 Zkoušení požární odolnosti provozních instalací – Část 8: Potrubí pro odvod kouře Tabulka 1 Úroveň tlaku Provozní tlakový diferenciál při teplotě okolí Tlakový diferenciál při zkoušce a při kalibraci před zkouškou Pa Pa 1 -500 -150 2 -1 000 -300 3 -1 500 -500
ČSN EN 1366 -1: 2004 Zkoušení požární odolnosti provozních instalací – Část 1: Vzduchotechnická potrubí Potrubí A – oheň vně potrubí 1000 x 500 mm Potrubí B – oheň uvnitř potrubí 1000 x 250 mm
ČSN EN 1366 -1: 2004 Zkoušení požární odolnosti provozních instalací – Část 1: Vzduchotechnická potrubí Svislé potrubí
ČSN EN 1366 -1: 2004 Zkoušení požární odolnosti provozních instalací – Část 1: Vzduchotechnická potrubí Vodorovná potrubí
Předchozí zkoušky (podle ČSN EN 1366 -1) Potrubí A, svislé (ale – 500 Pa) Potrubí A, vodorovné (ale – 500 Pa) Potrubí B, svislé Potrubí B, vodorovné
Zkoušky podle ČSN EN 1366 -8 Potrubí C, vodorovné, -1000/-300 Pa
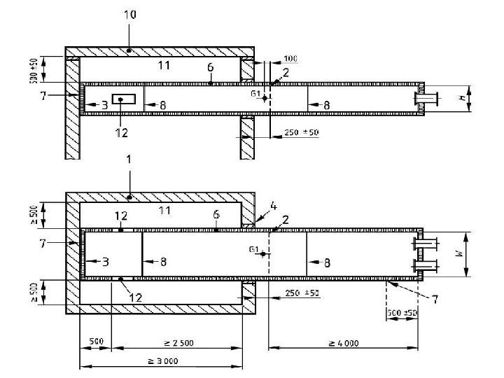
ČSN EN 1366 -8: 2004 Zkoušení požární odolnosti provozních instalací – Část 8: Potrubí pro odvod kouře Rozměry zkušebního vzorku
ČSN EN 1366 -8: 2004 Zkoušení požární odolnosti provozních instalací – Část 8: Potrubí pro odvod kouře Zkušební podmínky Křivka podle ČSN EN 1363 -1 Tlak v polovině výšky potrubí (15 ± 3) Pa
ČSN EN 1366 -8: 2004 Zkoušení požární odolnosti provozních instalací – Část 8: Potrubí pro odvod kouře Měření netěsností při teplotě okolí - uzavřou se otvory v potrubí - v potrubí se vytvoří podtlak podle tabulky 1 - netěsnost max. 10 m 3/h na 1 m 2 celkové vnitřní povrchové plochy (vně i uvnitř pece) - odstraní se těsnění z otvorů - měří se deformace na části potrubí vně pece - vnitřní rozměry (šířka a výška, popř. průměr) se mohou zmenšit max. o 10%
ČSN EN 1366 -8: 2004 Zkoušení požární odolnosti provozních instalací – Část 8: Potrubí pro odvod kouře Požární zkouška - v potrubí se vytvoří podtlak podle tabulky 1 - zkouška podle ČSN EN 1363 -1 - měří se obsah kyslíku v části potrubí uvnitř pece (před perforovanou deskou) a v části potrubí vně pece - netěsnost se vypočítá z rozdílu obsahu kyslíku na sondě vně pece a uvnitř pece) - pozoruje se potrubí – deformace a zborcení ovlivňující schopnost plnit funkci - měří se deformace na části potrubí vně pece (u chráněného ocelového potrubí co nejdříve po zkoušce)
ČSN EN 1366 -8: 2004 Zkoušení požární odolnosti provozních instalací – Část 8: Potrubí pro odvod kouře Kritéria při požární zkoušce • Netěsnost - max. 10 m 3/h na 1 m 2 vnitřní povrchové plochy od perforované desky ke konci potrubí vně pece • Celistvost • Izolace • Zmenšení průřezu • Mechanická stabilita
ČSN EN 1366 -8: 2004 Zkoušení požární odolnosti provozních instalací – Část 8: Potrubí pro odvod kouře Kritéria při požární zkoušce • Netěsnost • Celistvost – u těsnění/prostupu mezi podpěrnou konstrukcí a potrubím podle ČSN EN 1366 -1 = podle 1363 -1 bavlněný polštářek měrky spár plamenné hoření • Izolace • Zmenšení průřezu • Mechanická stabilita
ČSN EN 1366 -8: 2004 Zkoušení požární odolnosti provozních instalací – Část 8: Potrubí pro odvod kouře Kritéria při požární zkoušce • Netěsnost • Celistvost • Izolace – z výsledků zkoušek podle ČSN EN 1366 -1 • Zmenšení průřezu • Mechanická stabilita
ČSN EN 1366 -8: 2004 Zkoušení požární odolnosti provozních instalací – Část 8: Potrubí pro odvod kouře Kritéria při požární zkoušce • Netěsnost • Celistvost • Izolace • Zmenšení průřezu - vnitřní rozměry (šířka a výška, popř. průměr) se mohou zmenšit max. o 10% • Mechanická stabilita
ČSN EN 1366 -8: 2004 Zkoušení požární odolnosti provozních instalací – Část 8: Potrubí pro odvod kouře Kritéria při požární zkoušce • Netěsnost • Celistvost • Izolace • Zmenšení průřezu • Mechanická stabilita – „Jestliže se potrubí v peci zbortí tak, že je lze hodnotit jako neschopné dále zajišťovat odvod kouře nebo požárně odolnou funkci, hodnotí se to jako porušení kritéria mechanické stability
ČSN EN 1366 -8: 2004 Zkoušení požární odolnosti provozních instalací – Část 8: Potrubí pro odvod kouře Oblast přímé aplikace Výsledky zkoušky vodorovného potrubí platí i pro svislé, pokud: - svislé potrubí je provedené shodně - svislá potrubí A a B byla bez porušení odzkoušena podle ČSN EN 1366 -1 Výsledky zkoušky svislého potrubí platí pouze pro svislé potrubí Při zkoušce potrubí s normovými rozměry lze aplikovat až 1250 x 1250 mm nebo ø 1000 mm Nedovoluje se extrapolace na jedno-, dvou- nebo třístranná potrubí Platí pro potrubí s podtlakem nebo přetlakem podle tabulky 7
ČSN EN 1366 -8: 2004 Zkoušení požární odolnosti provozních instalací – Část 8: Potrubí pro odvod kouře Oblast přímé aplikace Tabulka 7 Úroveň tlaku Podtlak (Pa) Přetlak (Pa) (viz tabulku 1) až do 1 500 2 1 000 500 3 1 500
ČSN EN 13501 -4 Požární klasifikace stavebních výrobků a konstrukcí staveb – Část 4: Klasifikace podle výsledků zkoušek požární odolnosti prvků systémů pro usměrňování pohybu kouře
ČSN EN 13501 -4 Požární klasifikace stavebních výrobků a konstrukcí staveb – Část 4: Klasifikace podle výsledků zkoušek požární odolnosti prvků systémů pro usměrňování pohybu kouře Třídy požární odolnosti
ČSN EN 13501 -4 Požární klasifikace stavebních výrobků a konstrukcí staveb – Část 4: Klasifikace podle výsledků zkoušek požární odolnosti prvků systémů pro usměrňování pohybu kouře Protokol o klasifikaci
Děkuji za pozornost Ing. Vilém Stanke stanke@promatpraha. cz
- Slides: 45