Using AECOsim Building Designer and Pro Concrete to
Using AECOsim Building Designer and Pro. Concrete to Save Time and Reduce Costs © 2016 Bentley Systems, Incorporated
How can model reuse help? Reinforced Concrete Detailing 2 | WWW. BENTLEY. COM | © 2016 Bentley Systems, Incorporated
Reinforcement Detailing Project Concrete Models: AECOsim Building Designer Export Micro. Station Import Reinforced Concrete Models: 3 | WWW. BENTLEY. COM | © 2016 Bentley Systems, Incorporated Remodel Pro. Concrete
Pain Points Reinforcement Detailing Project • Waste time and effort • Errors and omissions 4 | WWW. BENTLEY. COM | © 2016 Bentley Systems, Incorporated
Reinforcement Detailing Project Concrete Models: AECOsim Building Designer Export Micro. Station Import Reinforced Concrete Models: 5 | WWW. BENTLEY. COM | © 2016 Bentley Systems, Incorporated Remodel Pro. Concrete
Reinforcement Detailing Project Concrete Models: AECOsim Building Designer Micro. Station Referen ce Reinforced Concrete Models: 6 | WWW. BENTLEY. COM | © 2016 Bentley Systems, Incorporated Referen ce Pro. Concrete Ss 8
Clash Detection Conceptual Design Visualization Computational Design 7 | WWW. BENTLEY. COM | © 2016 Bentley Systems, Incorporated Drawings & Reports
Pro. Concrete: 3 d Modeling Concrete & Rebar 8 | WWW. BENTLEY. COM | © 2016 Bentley Systems, Incorporated
Pro. Concrete: Drawing Production, Material lists, bar schedules 9 | WWW. BENTLEY. COM | © 2016 Bentley Systems, Incorporated
Common Platform • AECOsim Building Designer • Pro. Structures = Pro. Concrete + Pro. Steel Both based on the same, Micro. Station Platform 10 | WWW. BENTLEY. COM | © 2016 Bentley Systems, Incorporated
Model Reuse Workflow for Reinforced Concrete Detailing 11 | WWW. BENTLEY. COM | © 2016 Bentley Systems, Incorporated
AECOsi 12 | WWW. BENTLEY. COM | © 2016 Bentley Systems, Incorporated
Pro. Concre 13 | WWW. BENTLEY. COM | © 2016 Bentley Systems, Incorporated
14 | WWW. BENTLEY. COM | © 2016 Bentley Systems, Incorporated
15 | WWW. BENTLEY. COM | © 2016 Bentley Systems, Incorporated
16 | WWW. BENTLEY. COM | © 2016 Bentley Systems, Incorporated
17 | WWW. BENTLEY. COM | © 2016 Bentley Systems, Incorporated
18 | WWW. BENTLEY. COM | © 2016 Bentley Systems, Incorporated
19 | WWW. BENTLEY. COM | © 2016 Bentley Systems, Incorporated
20 | WWW. BENTLEY. COM | © 2016 Bentley Systems, Incorporated
21 | WWW. BENTLEY. COM | © 2016 Bentley Systems, Incorporated
22 | WWW. BENTLEY. COM | © 2016 Bentley Systems, Incorporated
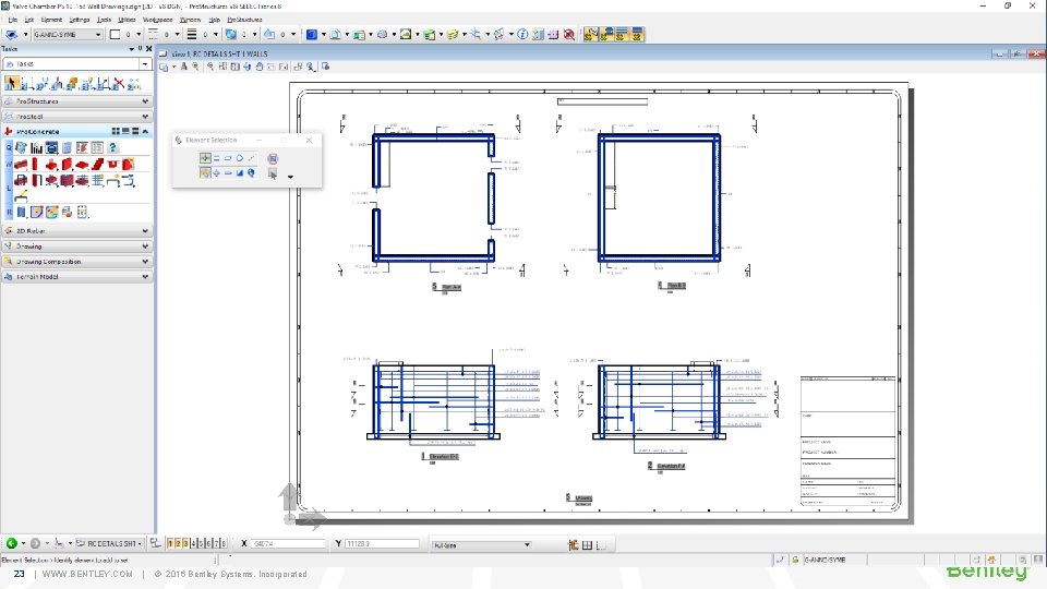
23 | WWW. BENTLEY. COM | © 2016 Bentley Systems, Incorporated
24 | WWW. BENTLEY. COM | © 2016 Bentley Systems, Incorporated
Updating the Models • What happens? 25 | WWW. BENTLEY. COM | © 2016 Bentley Systems, Incorporated
Demo 26 | WWW. BENTLEY. COM | © 2016 Bentley Systems, Incorporated
Summary 27 | WWW. BENTLEY. COM | © 2016 Bentley Systems, Incorporated
Summary 28 | WWW. BENTLEY. COM | © 2016 Bentley Systems, Incorporated Reference
Summary • Rebar Modeling 29 | WWW. BENTLEY. COM | © 2016 Bentley Systems, Incorporated
Summary • Deliverabl es – Drawings – Schedules 30 | WWW. BENTLEY. COM | © 2016 Bentley Systems, Incorporated
Summary • Updating the model AECOsim Building Designer 31 | WWW. BENTLEY. COM | © 2016 Bentley Systems, Incorporated Pro. Concrete
Summary • Automatically Updated Drawings 32 | WWW. BENTLEY. COM | © 2016 Bentley Systems, Incorporated
Benefits of Model Reuse • Time Saved • No Remodeling Errors Using AECOsim Building Designer and Pro. Concrete can Save Time and Reduce Costs 33 | WWW. BENTLEY. COM | © 2016 Bentley Systems, Incorporated
More information • www. bentley. com/proconcrete - Pro. Concrete • www. bentley. com/abd - AECOsim Building Designer • http: //pages. info. bentley. com/webinars/ - upcoming webinars • http: //pages. info. bentley. com/videos/ - past webinars and other videos 34 | WWW. BENTLEY. COM | © 2016 Bentley Systems, Incorporated
Thank You! 35 | WWW. BENTLEY. COM | © 2016 Bentley Systems, Incorporated
- Slides: 35