Thesis Presentation Devin Learn Construction Management Dr Messner

  • Slides: 6
Download presentation
Thesis Presentation Devin Learn Construction Management Dr. Messner Lancaster General Hospital 5 th &

Thesis Presentation Devin Learn Construction Management Dr. Messner Lancaster General Hospital 5 th & 6 th Floor Fit-Out, Cardiac Elevator Lancaster, Pennsylvania 11/29/06

Analysis #1: Commissioning This technical analysis will look at the effectiveness of commissioning on

Analysis #1: Commissioning This technical analysis will look at the effectiveness of commissioning on fit-out type construction projects focusing on healthcare/hospital facilities. In order to conduct this research the following steps should be used. • Review existing literature on commissioning of healthcare/hospital facilities. • Determine benefits and decision making process of commissioning. • Catalog research information into decision making matrix.

Analysis #2: Infection Control Risk Assessment This technical analysis will look at the importance

Analysis #2: Infection Control Risk Assessment This technical analysis will look at the importance of infection control risk assessment focusing on sequencing and schedule reduction. In order to conduct this research the following steps should be used. • Review literature on infection control risk assessment and requirements for healthcare/hospital facilities. • Determine locations and types of assemblies that will be used to satisfy these requirements. • Identify sequence of work that will require the least amount of rework or movement of these assemblies to complete the project with the least amount of risk.

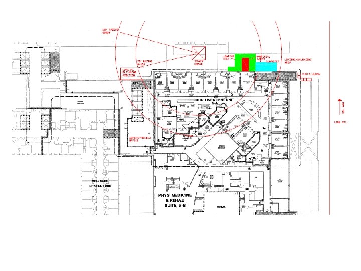
Analysis #3: Constructability This technical analysis will look at the constructability issues of the

Analysis #3: Constructability This technical analysis will look at the constructability issues of the cardiac elevator addition in an isolated site within the hospital complex. In order to conduct this research the following steps should be used. • Identify constructability issues for the cardiac elevator addition. • Research alternate methods of construction.