The Green Corridor Project Green Infrastructure and Stormwater

































- Slides: 33
The Green Corridor Project § Green Infrastructure and Stormwater Pre. Treatment Concept § “Silva Cell” Crate System § “Freno” Modular Flow-Through Planters § Micro-Pool Stormwater Swale § Streetscape Planting Concepts
Design Considerations: Expected Pollutants • Landscaping sites (fertilizers -- phosphorus and nitrogen): greater cell depth will help filter these. – Studies show that removal of these pollutants increases with the depth of the bioretention cell, reaching removal levels up to 80% for phosphorus and 60% for nitrogen (TKN) with sufficient depth (study results relating to nitrogen vary). • Parking lot or streetscape applications (metals, oils, grease and solids): Thicker mulch layer – Studies support that a significant mulch layer will effectively remove greater than 90% of copper, zinc and lead. In urban areas where heavy metals are the focal pollutants, shallow bioretention facilities with a significant mulch layer may be recommended. In residential areas, however, where the primary pollutants of concern are nitrogen and phosphorus, the depth dependence will require deeper cells that reach approximately 2 to 3 feet http: //www. lid-stormwater. net/bio_benefits. htm
Bio-retention removes Pollutants (survey of studies) Pollutant Copper Pollutant Removal 43%-97% Lead 70%-95% Zinc 64%-95% Phosphorus 65%-87% Total Kjeldahl Nitrogen (TKN) Ammonium (NH 4+ ) Nitrate (NO 3 -) 52 -67% 92% 15%-16% Total nitrogen (TN) 49% Calcium 27% Bioretention BMP, http: //cfpub. epa. gov/npdes/stormwater/menuofbmps/index.
Fairfax Boulevard Stormwater Pre-Treatment Filtration Based System Filtration Systems provide temporary storage and filtration of stormwater, contributing to: • • • Water quality control Percentage Reduction of Stormwater Volume Channel protection, Overbank protection, and Extreme flood control • Used where soils are not suitable for infiltration • The system stores and treats stormwater before returning it to the stormwater drainage system typically through a perforated under-drain. • Use of small scale, natural drainage features to slow, clean and capture runoff to reduce the impacts of development on rivers, streams, lakes, coastal waters, and ground water.
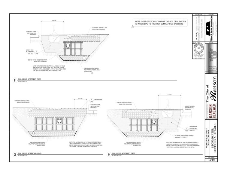
Fairfax Boulevard Lancaster Cir. To 6 th Ave “Silva Cell” Crate System Suspended Concrete and Brick Paving Stormwater Distribution/Irrigation Lines “Silva Cell” Structural Crates Containing Uncompacted Engineered Soils for Tree Root Growth and Water Retention Perforated Under Drains for Large Storm Events Geomembrane Liner to prevent Infiltration beyond the Structural Crate System Connection to the Underground Storm Sewer System
How the “Silva Cell” Crates works
Washington DC- SW 1 st street- Silva Cells 2008 - 2010
City of Charlotte Soil Vaults- 1985 Willow Oak (Quercus phellos) Planted 1985, 25 years old in 2010 Avg DBH 16 inches; Avg 44 feet; Avg Soil Volume 700 cubic feet
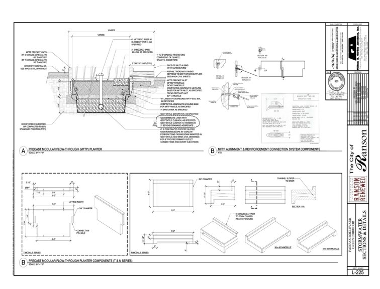
Fairfax Boulevard 6 th Ave. to 12 th Ave. Modular Flow-Through Planters Precast Concrete Curb Drain/Inlet Gravel Filter Strip Herbaceous Plantings 2 inch Mulch Layer Engineered Soils Sand Gravel Drainage Bed Overflow Drain for Large Storm Events Perforated Under Drains Geomembrane Liner to prevent Infiltration beyond the Flow-Through Planter Modular Precast Concrete Flow-Through Planter Walls Connection to the Underground Storm Sewer System
“Freno” Modular Flow-Through Planters
Life Cycle Benefits • As a modular system the Freno Flow. Through Planter can be removed and reused. • Similarly, components can be removed and reconfigured if the site is redesigned. • The system can be repaired with replacement parts if accidental damage occurs.
Suggested Modular Flow-Through Planter Maintenance Activity Schedule • Water plants daily for 2 weeks At project completion • • • Inspect soil and repair eroded areas Remove litter and debris Re-mulch void areas As Needed • Remove and replace dead and diseased vegetation Twice per year • • Add mulch Cut back herbaceous plantings during winter dormancy Once per year • Test soil treatment performance and replace soil/plants Testing 3 years As needed (7 -10 years) Bioretention BMP, http: //cfpub. epa. gov/npdes/stormwater/menuofbmps/index. cfm
6 th Fairfax Boulevard Ave. to Fairfax Crossing Micro-Pool Stormwater Swale Landscape Micro-Pool Plantings w/ Street Trees Weir Wall Spillways 3 ft. Turf Filter Strip Herbaceous Plantings with Formal Planting Border Perforated Under Drains Overflow Drain for Large Storm Events Connection to the Underground Storm Sewer System
Layered and “Over” Planting Approach to Micro-Pool Planting
Suggested Micro-Pool Weir Planting Maintenance Activity Schedule • Water plants daily for 2 weeks At project completion • • • Inspect soil and repair eroded areas Remove litter and debris Re-mulch void areas As Needed • Mow monthly for the First year Only • • • Add mulch Mow and/or cut back plantings during winter dormancy Selectively Remove Invasive exotic Plants Once per year • Re-plant eroded and bare areas after large storm events As needed Bioretention BMP, http: //cfpub. epa. gov/npdes/stormwater/menuofbmps/index. cfm
The Key to the Overall Success of the Micro-Pool Planting is to not over maintain after the First Year • Mow and/or cutback once a year • No irrigation needed • No fertilizing needed
Bio-diverse Planting of Street Trees
Layered and “Over” Planting Modular Flow-Through Planters
Micro-Pool Strategic Combination Plantings
Brick and Concrete Paving between Lancaster Cir. And 6 th Ave.