Switching to an alternative fuel source Case study


























- Slides: 26
Switching to an alternative fuel source Case study on installation of a Biomass Boiler Jim Kelly, Maintenance Manager, Centocor Biologics (Ireland)
Centocor Biologics (Ireland) - History • Part of Johnson and Johnson since 1999. • Cork site chosen as Green field Biotech site. • Capable of manufacturing medicines for rheumatoid arthritis, Crohns disease and psoriasis. • 2004. Engineering design • 2005. Construction • 2006. Commissioning • 2007. Equipment Validation • 2008. Engineering runs, Consistency lots • 2009. Process Validation and IMB licence • 2010. FDA approval.
Site layout • 5 buildings covering 25, 000 sqm. – – – Manufacturing Warehouse Labs and Admin Central Utilities Plant (CUP) Waste water treatment plant • CUP – Utility generation • • • Plant Steam Chilled water Compressed air WFI Clean Steam
Steam usage • Two 12 tonne, 8. 5 bar gas fired boilers. • Burning approximately 17 GWhrs of gas per year. • Steam demand varying from 2 to 5 tonnes/hr. • Annual CO 2 emissions of 3100 tonnes. • Main steam users – WFI generation – Clean steam generation – Heating hot water for space heating
Existing Gas boilers
Reasons for choosing Biomass • Main driver for project – carbon neutral. • Carbon emitted from boiler cancelled out by carbon absorbed by trees that are used for woodchip. • Second driver was fuel cost, wood is cheaper than gas – up to 15% savings have been achieved.
Project Summary • Project budget - € 2. 5 M • Project duration - 5 months • Project Managers – Sisk • Payback – 10 years
Boilerhouse
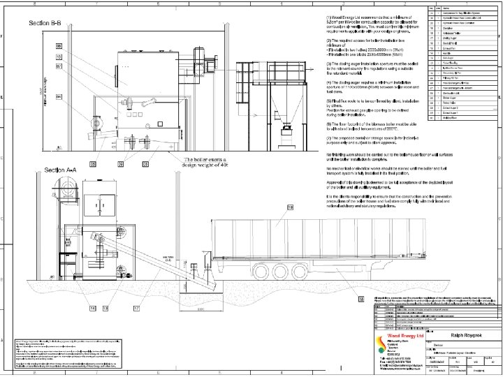
Boiler details • Manufactured by Binder, AG, Austria. • Have 3000 boilers worldwide. • 2. 1 MW, 2. 5 tonne/hr, 8. 5 bar output. • Efficiency 87 -90%. • Fuel must be <= 50% moisture will go out. • S 02 150 mg/m 3. • NOx 250 mg/m 3. • CO 150 mg/m 3. • Total Particulate matter 50 mg/m 3. • TOC < 5 mg/m 3. • Ash 1% of fuel volume. 0. 8 m 3 / day.
Boiler design • Moving floor design, similar to old fashioned chain grate coal boilers. • Ash removed by cyclone on boiler exhaust, also removed by auger at the end of the moving floor. • Hot gas recirc used to clean boiler. • Glosfume filtration unit downstream of boiler for removing particulates.
Boiler front
Boiler rear
Woodchip Supply Contract • Supply contract with Natural Power Systems (NPS), Waterford. • Supply woodchip to G 100 standard at < 50% moisture. • Range has been 36% to 50%. • 24/7 supply maintained. • Cost of woodchip based on Steam consumption of boiler. • Fixed price for k. Whr output of boiler. • Ash removal once per week, two 200 litre drums per week.
Woodchip containers • Four specially adapted 40 foot containers. • Moving floor, hydraulically driven. • Feed into auger supply system that feeds boiler. • Each container carries up to 18 tonnes of woodchip. • Delivery every 1. 5 days, from Fermoy 25 miles away. • Wood from Munster. • Best results when wood is left to dry for 4 months, moisture will drop from 60% to 36%.
Container delivery
Container docked in position
Container hydraulic ram
Glosfume exhaust gas filter unit • Exhaust gas particulates filtered by a Glosfume filter. • Particulates filtered down to 0. 1 um. • Particulates removed by banks of ceramic filters elements.
Glosfume exhaust gas filter unit
Questions?