Sub estaciones elctricas Tipos de sub estaciones de
Sub estaciones eléctricas
• Tipos de sub estaciones de transformación de tensión en el Perú. Generación Transmisión Distribución
TIPOS DE SUB ESTACIONES • CONVENCIONAL • A) superficie(SE). - Tiene dos tamaños de • 5 x 7. 5 m 2 tiene 2 celdas de transformadores y 6 celdas de 10 Kv. ). • 5 x 4 m 2 tiene 1 celda de transformador y 4 celdas de 10 Kv.
• Potencias normalizadas de transformadores según Edelnor y Luz del sur. • 50 ; 100 ; 160 ; 250 ; 400 ; 630, 2 x 400 Kva 2 x 630 Kva. • en ciudades : 10 / 0. 23 Kv. En zonas urbano marginales : 22, 9 / 0, 22 Kv.
SUB ESTACION DE DISTRIBUCION • B). -Compacta. -Se ubica en el recorrido de los alimentadores laterales. • B. 1) Sub estación Compacta Bóveda (SCB). -Es un transformador trifásico tipo compacto con dos dispositivos de protección y maniobra incorporados esta instalado en una bóveda de concreto subterránea bajo la vereda de la vía publica.
• Subterránea (SS). - TIENE DOS TAMAÑOS. • 5 x 9. 5 m 2 con 2 celdas de transformación y 6 celdas de 10 Kv. • 5 x 6 m 2 con 1 celdas de transformación y 4 celdas de 10 Kv.
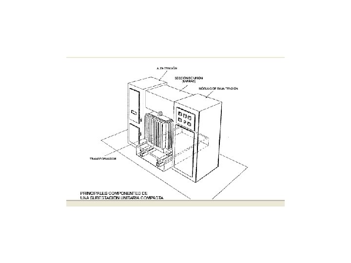
• B. 2) Sub estación Compacto Pedestal ( scp). • Si el transformador tipo compacto con dos dispositivos de protección y maniobra incorporados esta instalado sobre una base de concreto al ras de la superficie del piso en un área libre de terreno de 3 x 3 m 2 con acceso de vehículo desde la vía publica.
SUB ESTACION AEREA
- Slides: 38