Structural Loading 1 All structures are subjected to
Structural Loading 1
All structures are subjected to loading from various sources. The main categories of loading are: dead, imposed and wind loads. In the majority of cases design considering combinations of dead, imposed and wind loads is the most appropriate.
Dead loads are loads which are due to the effects of gravity, i. e. the self-weight of all permanent construction such as beams, columns, floors, walls, roofs and finishes. If the position of permanent partition walls is known, their weight can be assessed and included in the dead load.
Imposed loads are loads which are due to variable effects such as the movement of people, furniture, equipment and traffic. The values adopted are based on observation and measurement and are inherently less accurate than the assessment of dead loads.
wind Loads Environmental loading such as wind loading is clearly variable and its source is out with human control. In most structures the dynamic effects of wind loading are small, and static methods of analysis are adopted.
In braced structures where floor slabs and beams are considered to be simply supported, vertical loads give rise to three basic types of beam loading condition: (i) uniformly distributed line loads, (ii) triangular and trapezoidal loads, (iii) concentrated point loads.
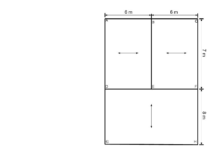
Load Distribution – One-way Spanning Slabs Consider the floor plan shown in Figure below where two one-way spanning slabs are supported on three beams AB, CD and EF. Both slabs are assumed to be carrying a uniformly distributed design load of 5 k. N/m 2
Load Distribution – One-way Spanning Slabs Both slabs have continuous contact with the top flanges of their supporting beams and span in the directions indicated. The floor area supported by each beam is indicated in Figure below.
Beam AB: Total load = (floor area supported x magnitude of distributed load/m 2) = (2. 5 x 8. 0) x (5. 0) = 100 k. N Beam CD: Total load = (4 x 8. 0) x (5. 0) = 160 k. N Beam EF: Total load = (1. 5 x 8. 0) x (5. 0) = 60 k. N Check: Total load on both slabs = (8. 0 x 5. 0) = 320 k. N
Load Distribution – two-way Spanning Slabs Since both slabs are two-way spanning, their loads are distributed to supporting beams on all four sides assuming a 45 o dispersion as indicated in Figure below.
Beam AB: Load due to slab ACDB = Beam EF: Load due to slab CEFD= Beams AC and BD: Load due to slab ACDB=
Beams CE and DF: Load due to slab CEFD= The loading on beam CD can be considered to be the addition of two separate loads, i. e.
Load Distribution – secondary Beams Consider the same previous floor plan with the addition of a secondary beam spanning between beams AB and CD as shown in Figure. The load carried by this new beam imposes a concentrated load at the mid-span position of beams CD and AB at the mid-span points G and H respectively.
Combined One-way Slabs, Two-way Slabs and Beams 1
Selection of beam steel section •
Selection of beam steel section •
Example Select a W shape section for the beam DF in Figure below. The live load on the floor is 5 k. N/m 2, and the dead load, including all structural elements is 1 k. N/m 2. The deflection due to total load is limited to L/240. Use fy= 265 MPa steel and modulus of elasticity (E) is = 200 x 106 k. N/m 2
- Slides: 23