STREDN PRIEMYSELN KOLA STAVEBN V TRNAVE STREDN PRIEMYSELN
STREDNÁ PRIEMYSELNÁ ŠKOLA STAVEBNÁ V TRNAVE
STREDNÁ PRIEMYSELNÁ ŠKOLA STAVEBNÁ V TRNAVE STREDOŠKOLSKÁ ODBORNÁ ČINNOSŤ ČÍSLO ODBORU: 10 STAVITEĽSTVO, ARCHITEKTÚRA, DIZAJN
STREDNÁ PRIEMYSELNÁ ŠKOLA STAVEBNÁ V TRNAVE STREDOŠKOLSKÁ ODBORNÁ ČINNOSŤ ČÍSLO ODBORU: 10 STAVITEĽSTVO, ARCHITEKTÚRA, DIZAJN � Polyfunkčný dom
ZASITUOVANIE OBJEKTU
POZEMOK Z HLAVNEJ UL.
POZEMOK Z HLAVNEJ UL.
POZEMOK Z HLAVNEJ UL.
POZEMOK Z UL. VAJANSKÉHO
POZEMOK Z UL. VAJANSKÉHO
OBJEKTY NACHÁDZAJÚCE SA NA HLAVNEJ UL.
OBJEKTY NACHÁDZAJÚCE SA NA HLAVNEJ UL.
OBJEKTY NACHÁDZAJÚCE SA NA HLAVNEJ UL.
OBJEKTY NACHÁDZAJÚCE SA NA UL. VAJANSKÉHO
OBJEKTY NACHÁDZAJÚCE SA NA UL. VAJANSKÉHO
OBJEKTY NACHÁDZAJÚCE SA NA UL. VAJANSKÉHO
KRITÉRIÁ NÁVRHU
KRITÉRIÁ NÁVRHU Dodržanie uličnej čiary
KRITÉRIÁ NÁVRHU Dodržanie uličnej čiary Zachovať historický ráz ulice
KRITÉRIÁ NÁVRHU Dodržanie uličnej čiary Zachovať historický ráz ulice Dodržať výšky v zástavbe
KRITÉRIÁ NÁVRHU Dodržanie uličnej čiary Zachovať historický ráz ulice Dodržať výšky v zástavbe Zachovať charakter sedlových a pultových striech
KRITÉRIÁ NÁVRHU Dodržanie uličnej čiary Zachovať historický ráz ulice Dodržať výšky v zástavbe Zachovať charakter sedlových a pultových striech Vytvorenie min 50% podlahovej plochy na bývanie
KRITÉRIÁ NÁVRHU � Dodržanie uličnej čiary � Zachovať historický ráz ulice � Dodržať výšky v zástavbe � Zachovať charakter sedlových a pultových striech � Vytvorenie min 50% podlahovej plochy na bývanie � Vytvorenie parkovacích plôch a obchodných prevádzok
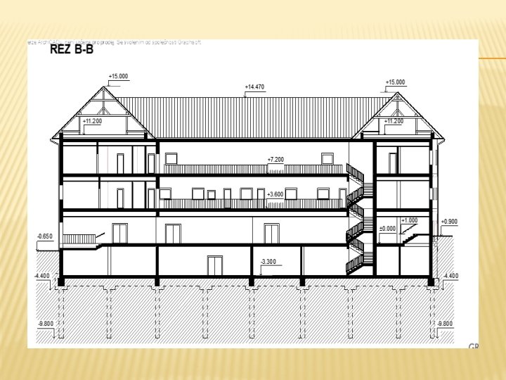
PÔDORYSNÉ RIEŠENIE
1. PODZEMNÉ PODLAŽIE
1. PODZEMNÉ PODLAŽIE
1. PODZEMNÉ PODLAŽIE
1. PODZEMNÉ PODLAŽIE
1. NADZEMNÉ PODLAŽIE
1. NADZEMNÉ PODLAŽIE
1. NADZEMNÉ PODLAŽIE
1. NADZEMNÉ PODLAŽIE
1. NADZEMNÉ PODLAŽIE
2. NADZEMNÉ PODLAŽIE
2. NADZEMNÉ PODLAŽIE
2. NADZEMNÉ PODLAŽIE
2. NADZEMNÉ PODLAŽIE
2. NADZEMNÉ PODLAŽIE
2. NADZEMNÉ PODLAŽIE
3. NADZEMNÉ PODLAŽIE
3. NADZEMNÉ PODLAŽIE
3. NADZEMNÉ PODLAŽIE
3. NADZEMNÉ PODLAŽIE
PREDBEŽNÁ CENA OBJEKTU Obostavaný Celková priestor: 12 871, 2 m 3 cena: 2 448 102 eur
POHĽADY
POHĽAD Z HLAVNEJ UL.
POHĽAD Z HLAVNEJ UL.
POHĽAD Z ULICE VAJANSKÉHO
POHĽAD NA STRECHU
ĎAKUJEME ZA POZORNOSŤ
- Slides: 53