Renaissance Ratios Exercise Inclass exercise As a table
Renaissance Ratios Exercise
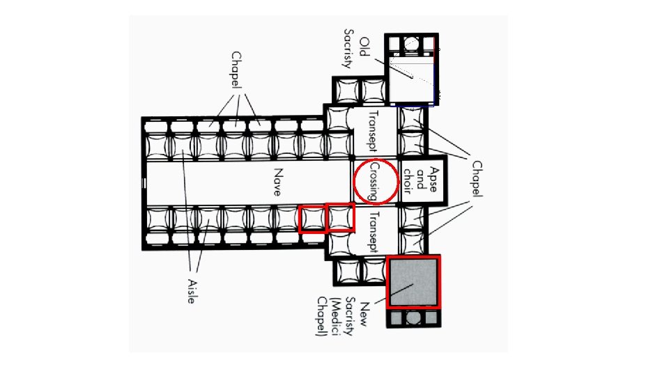
In-class exercise As a table of 4, prepare a 2 -minute presentation of the key principles of the following Renaissance buildings by these two Masters: Brunelleschi: 1. San Lorenzo 2. Ospedale degli Innocenti 3. Santo Spirito 4. Pazzi Chapel 5. Santa Croce 6. Florence Cathedral 7. Palazzo Pitti o o o Alberti: 8. Santa Maria Novella 9. San Francesco at Rimini – Tempio Malatestiano 10. Palazzo Rucellai 11. San Andrea at Mantua 12. San Sebastiano 13. Old St-Peter’s Basilica What can you say about its geometry? Are there references to Ancient Roman shapes/imagery? Have you shown its plan? Have you shown its elevation? Have you shown an interior shot? Please use a max of 2 slides in our shared Power Point YOU WILL BE STOPPED AT 2 MINUTES!
Find the geometric patterns in the following building listed in this Power. Point Use the geometric ratios provided by superimposing it to the Plans / elevations / sections of the building o What can you say about its geometry?
Are there references to Ancient Roman / Greek shapes/imagery?
Are there references to Ancient Roman / Greek shapes/imagery?
Find the key to the building’s aesthetic secrets
https: //www. youtube. com/watch? v=W 6 h. STWwv. IUI Watch the video “Finding the Golden Ratio at Durham Cathedral” to get an idea of what you are looking for
Unlock the secrets of your favorite building shared in day 1 of our history class
Stretch your patterns to compensate for perspective foreshrtening Bishopric Cathedral of Alba Iulia
Left: CN Tower Toronto Right: The City of Calgary Water Centre in Calgary, Canada
Stretch your patterns to compensate for perspective foreshrtening (renowned Romanian sculptor) Brancusi's sculpture The kiss gate United Nations building
Georgian Style House
The answer is in the palm of your hand!
- Slides: 19