Modern Movement 1910 1940 s Functionalism whatever you






























































































































- Slides: 126
Modern Movement 1910 – 1940 s Functionalism whatever you design MUST work Ornament as Crime Raumplan & Plan Libre space planning issues
Adolph Loos, 1870 -1933 • “father of modern movement” • architect—loved theory • used no historical references in his architecture—especially ornamentation
• ornament does not serve a function • wrote of people that continue to ornament their bodies—backward & uncivilized • likened those with tattoos to criminals
backyard Steiner House, Adolph Loos, 1910 -1920 • white box as a dwelling • strong desire for symmetry
• front façade • curved line for interest • very rigid
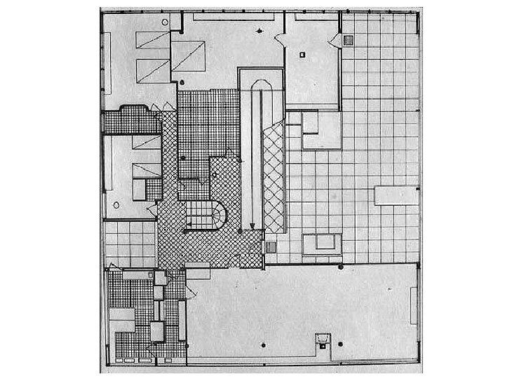
Moller House, Adolph Loos, 1910 -1920 • believes society has two faces—public face (exterior) & private face (interior) • client did own interior
• space should be freed from • gave you the shell to work with —you chose individual pieceshaving rigid floors • wanted much more organicism
Raumplan—he freed the space vertically—different sense of complexity
Maison Domino, Le Corbusier, 1914 direct contrast with Le Corbusier’s—“Plan Libre”
Director of Bauhaus School— 1919 • combines two schools of thought—hand craft & fine art • you design it, you make it, but you accept that it will be made by a machine & mass produced Walter Gropius
first year • completely disregarded history in design • all incoming students went through a “ritual cleansing” • first year consisted of a study of elements and principles of design
• original location of the school—very conservative town • 1923—exhibition; public didn’t like it • thought that the Bauhaus was creating socialist freethinkers • made them move
Bauhaus, Dessau, Gropius & Faculty, 1926 • city (Dessau) funded the construction of the new building • faculty designed building
• still exists • simplified approach to building • little ornamentation • very rational
• designed to function in a specific manner • if it functioned well, it was beautiful • used as few materials as possible
very linear & avant garde
Director's Office at Weimar Bauhaus, Gropius & collaborators, 1926 • did use color • only soft thing in the room is textile • lighting by Laslo
• two faculty members per studio • one to explain production & one to explain design • Itten believed his job was to reach into each student and unleash inner creativity • Gropius wasn’t happy with this Johannes Itten, 1916
• loved expressive and manipulative aspects of color Die Begegnung, Johannes Itten, 1916
Laslo Moholy-Nagly • more of an industrial designer —about production • form is the expression
Light Display: Black- White Grey, Moholy-Nagy
Marcel Breuer (Broyer) • taught furniture making • used materials efficiently and in new ways
• sling seat—fabric held in tension • step in the direction of trying to see function of chair • cantilevering becomes popular
Cesca Chair Breuer, 1926 • inspired by a bicycle • sitting only on two legs—entirely cantilevered
meant for a middle class market
Tubular Steel furniture by Marcel Breuer, 1925 -1927, Bauhaus Wassily Chair, • named after his friend—Wassily 1927 Kandinsky • some people argue it uses more material than necessary
Gunta Stolzl • weaving workshop director— began on a temporary basis • women could only go into weaving • would sell students designs to industry for money for school • women in weaving were supporting entire school eventually
• did wall hangings, rugs, bedspreads, etc… • only soft surface in entire space— humanized interior 1926
Wallhanging, Stolzl, 1926
Student dorm room with Stolzl’s bedspread, Pellerhaus, 1926
Lily Reich • heads up weaving workshop in the 30 s—when Mies van der Rohe becomes the director • called herself an “inner architect”
Textiles from the Bauhaus Weaving Workshop
Interiors by Lily Reich, Berlin Expositions of 1931, Bauhaus, 1934 Berlin exposition vignette—uses textiles to make space more livable
Interiors by Lily Reich, Berlin Expositions of 1931, Bauhaus, 1934 manipulated textiles so that room feels soft—uses tubular steel like Breuer—chair reference to Mies
Mies van der Rohe 1886 -1969 “Architecture is the real battleground of the spirit. ” • wants to take Bauhaus to its next step—focusing more on aesthetics
Tubular Steel Cantilever Chair, Mies & Lily Reich, 1926 • MR 2 • tubular steel • fabric in tension supports padding • injected lead into back stretcher to hold it down—in order to keep more elegant line of curved legs
German Pavilion, Barcelona, Spain, World's Fair, 1929; w/ Barcelona furniture perhaps the most famous of all work
• based off of Corbusier’s “plan libre” • all walls are non-load bearing—do not articulate and close off space
concrete ceiling & slab floors
limited structure
• free flow of space—walls are accenting depth of space • rug/textile helps to identify space & function • can have glass walls now—are not supporting anything
browns & oranges brilliant blue/ gray
collection of different types of marble in structure
Barcelona Chair, Spain, Mies, 1929 • throne for king & queen of Spain’s visit to pavilion • leather and strap steel with fabric & tension webbing centers all weight on one point—had to thicken joint
Tugendhat (family) House, Mies, Brno (city), Czechoslovakia, 1928 -1930 • residential—façade; simple white boxes • strong horizontal quality—flat roof • unornamented • generally unpretentious
glass curtain wall can roll down into basement walls looks to be one story—actually two— top floor servants; ground floor family
Corbusier’s idea of structure used—columns or “pilotes” only thing holding up structure
frames an extraordinary view
front door hard to find—kind of like FLW
• “wallpaper” is nature—curtains play vital role in climate control • textile defines space
• chrome plated columns distinguishes Mies work from Corbusier • curtains being used as temporary walls • textiles & glass used as dividers instead of walls
chrome plated columns distinguishes Mies work from Corbusier
Tugendhat chair • fabric & tension webbing • tufted leather • still cantilevered, but with “S” shape curve • again used strap steel
Identifying features?
dining room articulated by curved wall— built-in marble side board seems to be floating
• wood grain of wall creates distinct patterns • view brings color and pattern to space
Brno Chair • named after location of house • emphasizes cantilever • dropped seat • not fabric & tension • strap steel
Brno Chair tubular steel version
STRAP STEEL VERSION • more elegant • heavier • more expensive TUBULAR STEEL VERSION • easier to move • less expensive
Le Corbusier 1887 -1965 • his interpretation of modern movement most clear—published • “Vers un Architecture” • made five points: • plan libre—eliminate load bearing walls so it can be open to anything—furniture created space definition—furniture becomes most important • skeletal steel frame should show—columns/pilotes • lift structure off ground away from “dampness” • creates abstraction of nature on roof to balance footprint below • uninterrupted strip/ribbon windows due to less structure
Maison Domino, Le Corbusier, 1914
demonstrating his five points with model of Villa Savoye
real marker that modernist movement is catching on
Grand Comfort Lounge Chair (LC 2), Le Corbusier and Perriand (Charlotte), 1929 • example of theories in furniture form • showing structure • “lifting up”
Villa Savoye, Le Corbusier, Poissey-sur-Seine, France, 1931
ramp • turning radius of a car • auto beginning to shape architecture
service stair treated as sculptural piece
• grill grate at door for cleaning feet—saw architecture as “machines for living”—help you live • furniture was “equipment” for machine
garage doors
places sink here to help keep the house “machine” clean
sculptural stair front door ramp white used because it is all about form
wants you to believe that it is all machine made
leads you right into perfect view—”idealized version of nature”
creates abstraction of nature on roof to balance footprint below
• strip window lends visual texture & color to space • indirect trough lighting • structure separated from wall
• burnt orange walls—denote mass • powdery blue trim —delicate base • paint highlighted sculptural form
living room—very large space + strip windows to view outside
spatial complexity
curtain for privacy bedroom bathroom—drip dry on built-in chaise lounge
skylight built-in storage easy to maintain—house is meant to help you live
varied treatment of pilotes throughout space— freestanding; pretty close to a wall; submerge column partially; hide in wall completely
Chaise Lounge (LC 4), Le Corbusier and Perriand, 1928 • tubular steel, painted wood & leather • still being produced today • meant to be a moveable system
Chaise Lounge (LC 4), Le Corbusier and Perriand, 1928
Charlotte Perriand french architect and designer
recognized at age 24 for "Bar Under the Roof"—furniture made out of chromed steel and anodized aluminium
collaborated with Corbusier for nearly ten years
furniture still in production
Eileen Gray • counterpart for Corbusier & Mies • architect that started out as a decorative artist—completely untrained • started in Ireland
first craft— lacquering Le Destin 1914
more graphic in nature—leaves classical behind
• block screen—created so that it is very pliable • iconic piece of Eileen Gray Lacquer work, furniture and screens, Eileen Gray, 1913 -1920 s
• Madame Levy—Gray’s first interior commission– Rue de Lota • applied concept of block screen down hallway
• large, custom graphic design on wall • sitting in Pirogue— like boatish daybed
fireplace only remaining original interiors—all else Gray modified
Pirogue, from the apartment of Mme Levy
used a reeding effect—Egyptian inspiration?
graphic imagery on wall separates Gray from everyone else
House, E 1027, Eileen Gray, Roquebrune, France, 1929 example of architectural work—on Mediterranean Ocean in Saint Tropez—built with the help of Jean Badovici
part of interior stepping out of the “box”
Eileen worked mainly in exploded floor plan
• looks much bigger than it is • has two bedrooms, a maid's room, utility rooms and a large space, partitioned with screen furniture, that could serve as a living room, dining area, cloakroom or guest room
Bathroom, E 1027, Eileen Gray, Roquebrune, France, 1929 villa provided what she called the "minimum of space, maximum of comfort"
• filled every surplus cubic metre with concealed storage compartments • each designed to accommodate a specific item
Gray called Le Corbusier's murals "an act of vandalism. "
detail of Le Corbusier’s mural Le Corbusier wrote to Gray after staying at E -1027: "Those few days spent in your house have made me appreciate the rare spirit that dictates all of its organization, both inside and outside, and has given the modern furniture and equipment a form that is so dignified, so charming and full of wit. "
Transatt Chair, Eileen Gray
• produced a second furniture type for the house—”le style camping" • flexible, light and portable • capable of assuming different configurations • accommodate a range of activities.
Adjustable Table
Bibendum Chair