METAL PANCONCRETEFILLED STAIRS A common economical stair design






- Slides: 6
METAL PAN/CONCRETE-FILLED STAIRS A common economical stair design for new construction is metal pan stairs with concrete infill. The metal framing is sheet steel with thin sections of concrete placed in the stair treads and landings for the walking surfaces. These thin sections of concrete (usually less than two inches thick) typically do not contain any steel reinforcement and are susceptible to cracking. (1) http: //www. youtube. com/watch? v=gr. XE 8 vh RZKw
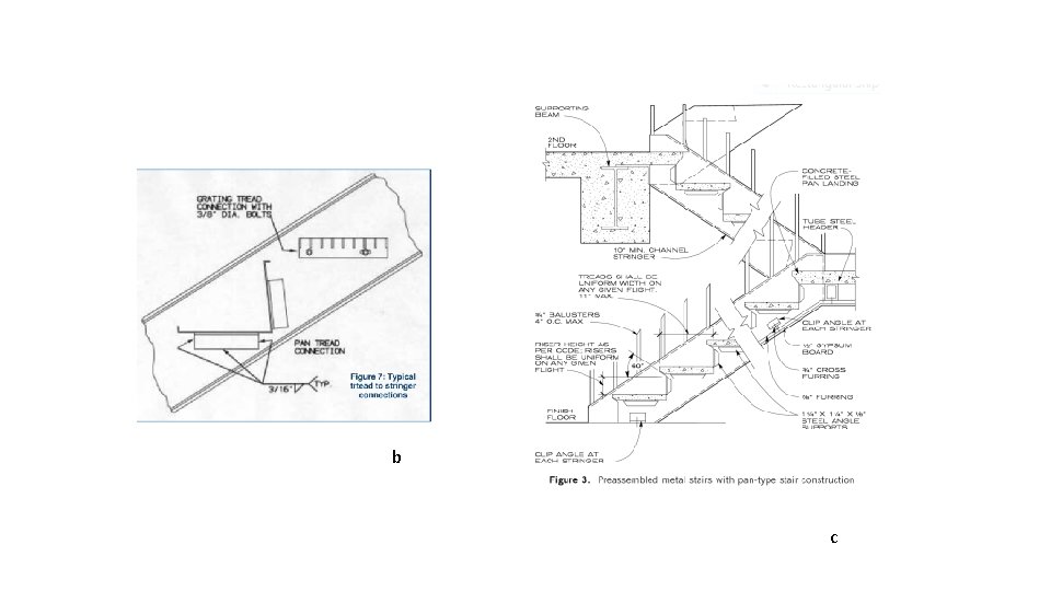
INSTALLING METAL PAN STAIRS c Install metal stairs by welding stair framing to steel structure or to weld plates cast into concrete. (2) brackets to stringers and attach metal pans to brackets by welding, riveting, or bolting. (3) a
b c
DETERIORATION • Thermal movement • Load con ditions • Shrinkage • unprotected steel Once the corrosion process begins, the steel expands, causing high tensile forces, which crack the concrete and further accelerate the deterioration process 4
REPAIR OPTIONS • Installation of supplemental steel where corrosion has deteriorated the steel and caused cross sectional loss of the steel pan section, stringer or supports • Re-weld failed welds on metal pans, support angles and hand railings Sandblast and priming of any metal that exhibits corrosion or rusting • Replacement of concrete in the metal stair pans • Painting of all metal sections of the stair tower • metal pan stairs-replacement of treads • metal pan stairs – replacement with precast stairs 4
REFERENCES 1. http: //www. iavm. org/facility_manager/pages/2009_Apr_May/Operations. Events. htm 2. http: //okc. swcnews. com: 84/SWCN 12705/2%20 -%20 Specifications/Project%20 Specifications/Div%20 -%2005000/05512%20 -% 20 metal%20 pan%20 stairs. pdf 3. http: //www. gobookee. net/get_book. php? u=a. HR 0 c. Dov. L 2 Nocmlzd. GVuc 29 u. Y 29 yc. G 9 y. YXRpb 24 u. Y 29 t. L 3 Byb 2 pl. Y 3 Rz. Lz. Yw. Mi 9 Fe. GNlb. Gwv. U 3 Bl. Y 3 Mv. MDU 1 MTAt. T WV 0 YWx. Td. GFpcn. Nhbm. RSYWlsa. W 5 ncy 5 w. ZGYKU 0 VDVEl. PTi. Aw. NTUx. MCBNRVRBTCBTVEFJUl. Mg. QU 5 EIFJBSUx. JTkd. TIFBBUl. Qg. MSBHRU 5 FUk. FMIDEu. MSAu. Li 4 = 4. http: //www. iavm. org/facility_manager/pages/2009_Apr_May/Operations. Events. htm a) https: //doc-0 k-8 gdocsviewer. googleusercontent. com/viewer/securedownload/dsn 1 aovipa 7 l 846 lsfcf 94 nedj 8 q 2 p 4 u/d 0448 bqej 397 afu 4 e 29 dmqqd 6 mvcvjma/1378789200000/d. XJs/ AGZ 5 hq 8 Bgb. JY 1 gwa. OYx 83 c. POd. Nw 6/a. HR 0 c. Dov. L 3 d 3 dy 5 hd. XRv. Y 2 Fk. ZGV 0 YWlscy 5 u. ZXQvc. GRm. L 3 JTd. GVwcy. Uy. MGFu. ZCUy. MFN 0 YWlycy 5 w. ZGY=? chan=Ew. AAADNHac Tk. Fqs 3/c. H 5 M 16 IND 9 VHsqe%2 Bu. Ga. IP%2 Bz. L 15 Bg. SNU&docid=915746 b 3396 ea 49 dc 6 dd 7 c 35 f 1 ec 8 a 16&hash=kb 83 b 7 sbnkc 644 mi 5 bl 6 m 3 bonajodvsq&nonce=lprafd 0 kvik 2 m&sec=AHSqidbp. O 2 hle. Usjj. Wy 2 r 5 x. Oi 4 pvy. LZH 2 eaa. Ul 62 l 6 y. ZCt. U_Nz_l. Hg. Xd. QLy. GEO 4 HW 54 cm. Bhe. DB 5&a=gp&filename=r. Steps+and+Stairs. pdf&user=AGZ 5 hq 8 Bgb. JY 1 gwa. OYx 83 c. POd. Nw 6 b) http: //www. docstoc. com/docs/99994897/DETAILING-STAIRS c) http: //books. google. com/books? id=3 r 0 ZBdbc 470 C&pg=PA 1&lpg=PA 1&dq=concrete+metal+pan+stairs&source=bl&ots=Y_Eda. ZHp. Lb&sig=pt. NECu. V 6 mmc 9 c. KKOL 8 _y 4 wnh. Ey 8&hl=en&sa=X&ei=o. Ygu. Ut. H 4 Ad. Kj 4 APH 9 YHo. Dg&ved=0 CFIQ 6 AEw. CDg. U#v=onepage&q&f=true