LS 20112012 Mechanika zemin a zakldn staveb 7
LS 2011/2012 Mechanika zemin a zakládání staveb 7. přednáška pokračování Podpořeno projektem FRVŠ č. 2883/2011
Parametry pro volbu Nároky stavební konstrukce Vlastnosti základových půd Hladina podzemní vody Uspořádání staveniště Ekonomické ukazatele Čas výstavby Ekologická hlediska
Svahovaná SJ jáma x rýha x šachta SJ - dno, svahy (boky) Velikost a tvar dna / pracovní prostor + 0, 3 až 1, 6 m „bednění, izolace, komunikace, odvodňovací prvky“
H < 1, 5 m … svislé, soudržné, krátkodobé H > 1, 5 m … svahované H < 6 m, soudržné, sklon 1: 1 < 12 m… 1: 2 soudržné v nesoudržných … podle úhlu vnitřního tření (30 -45) H > 8 m … lavice (bermy), min 0, 5 m výpočet pro H>6 m krátkodobá x dlouhodobá stabilita změna pórových tlaků s časem ! většinou je vhodné používat ef. hodnoty tot. jen u KS svahů násypů vzdálenosti hran 0, 3 až 1, 6 m (1, 6 m pažená s izol. ) ochranné vrstvy dna 0, 2 až 1 m
Stabilita • svahy • dno zvednutí dna vytlačení dna protržení dna sufóze ztekucení promrzání, rozbřídání, smršťování
Stabilita boků stavební jámy Metoda mezní rovnováhy Metoda řešení napjatosti a deformace zem. tělesa (MKP) Metoda mezního stavu rovnováhy (svislá stěna) př. H krit = 2 soudržnost tot. / obj. tíha zeminy norm. kons. jíly- 50 k. Pa H krit=5 m H krit = 2 soudržnost efektivní. odm. Kp / obj. tíha efektivní zkouška pomalá c=5 k. Pa, fí=20 H krit= 0, 7 m
Odvodňování Povrchové / podzemní vody Odvodňování povrchové hloubkové čerpací vrty čerpací jehly vakuové jehly elektroosmóza
Odvodňování – výchozí předpoklady IG a HG průzkum Propustnost vrstev Směry proudění, zdroje napájení Výška hladiny, kolísání Možnosti odtoku Povrchové – příkopy, tvary, sklony 0, 5 – 2 % Sběrná studna prům. 1 -1, 5, 2 x 2 šachta na 50 -100 bm 1 studna
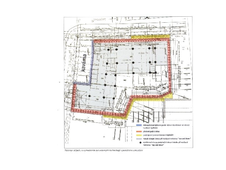
Pažení SJ Dle materiálu – dřevěné, ocelové, betonové Dle konstrukce/statického působení příložné štětovnicové stěny zátažné podzemní stěny hnané pilotové stěny záporové injektované stěny
Dle statického zajištění vetknuté rozepřené kotvené se vzpěrami Dle těsnění dna / boků
A příště ? • Pažicí konstrukce
- Slides: 17