Kitchen Basics Planning and trends Kitchens are Considered
Kitchen Basics Planning and trends
Kitchens are. . . • Considered the control center • most lived in room of the house • most often remodeled • strong selling feature • 10% of the value of the home • remodeling cost 20, 000 - 80, 000
History of the Kitchen • Open fire throughout most of history within living spaces - later moved to separate buildings used by slaves/servants • 1740's Franklin Stove was invented (wood and/or coal) • 1834 Oberlin Stove • 1843 Catharine Beecher wrote "A Treatise on Domestic Economy" which discussed how to design an efficient kitchen. • 1880 first gas stoves used. Also water, sewer and gas pipes. • 1893 electric stove introduced but not used until 1930's • 1912 Christine Frederick believed in Taylorism, a theory of management that analyzed and synthesized workflows (time and motion studies). Its main objective was improving economic efficiency, especially labor productivity.
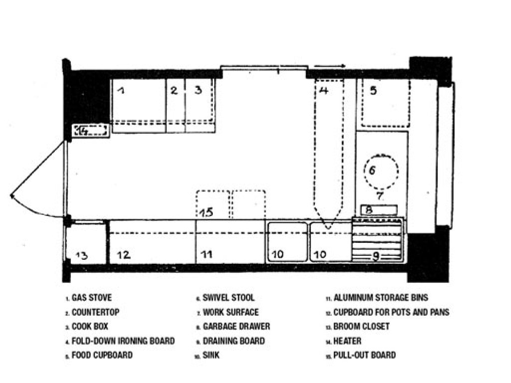
Frankfurt Kitchen • 1926 First "Fitted Kitchen" designed by Margarete Lihotzky known as the Frankfurt Kitchen, which was the prototype of the built-in kitchen now prevalent in the western world. Based on the scientific research by U. S. management expert Frederick Winslow Taylor and her own research, Lihotzky used a railroad dining car kitchen as her model to design a "housewife's laboratory" using a minimum of space but offering a maximum of comfort and equipment to the working mother. The Frankfurt City Council eventually installed 10, 000 of her mass-produced, prefabricated kitchens in newly-built working-class apartments
Poggenpohl Kitchens • German cabinet manufacturer founded in 1892 focused on kitchen furniture • 1923 the "Ideal" kitchen cabinet • 1928 "Reform Kitchen" Interconnecting cabinets with functional interiors
The Modern Kitchen • Mass produced cabinets during WWII • Formica countertops • 1940's saw trend in small and large electrified appliances such as blenders, toasters, mixers and refrigerators and electric ovens. • 1944 University of Illinois formed the Building Research Council with the goal of incorporating state of the art technology into home building. The concept of the kitchen work triangle was developed in the 1950's.
When planning a kitchen…. • Build cabinets to fit the cook • 36” high standard • 24” deep standard • 3” increments • Build shelves to fit the supplies • Understand anthropometrics
Reach Limits
Four Kitchen Layouts • • One Wall (pullman or strip) Corridor ( galley) L- shaped U-shaped
Work Centers • Primary work centers • Cook Center • Refrigerator Center • Sink Center • Secondary work center • Mix center • Serving center
Work Triangle • Developed in the 1950’s • used to evaluate the efficiency of a kitchen plan. • A line is drawn from the center of the sink to the center of the cooking surface to the center of the refrigerator and then back to the sink. • These points are three major centers of activity. • Today’s kitchens often have more than one triangle
Planning Guidelines • http: //starcraftcustombuilders. com/kitchen. desi gn. rules. htm
Doorway and walkway clearances Doorways should be at least 32” wide and not more than 24” deep in the direction of travel. Walkways (passages between vertical objects greater than 24” deep in the direction of travel, where not more than one is a work counter or appliance) should be at least 36” wide.
Work aisles clearances Work aisles (passages between vertical objects, both of which are work counters or appliances) should be at least 42” wide in one-cook kitchens, at least 48” in multiple cook kitchens.
Work triangle The work triangle should total 26’ or less with no single leg of the triangle shorter than 4’ nor longer than 9’. The work triangle should not intersect an island or peninsula by more than 12”. The triangle is the shortest walking distance between the refrigerator, primary food preparation sink and primary cooking surface, measured from the center front of each appliance.
Traffic flow should not go through work triangle
Avoid door interference
Dishwasher placement
Kitchen Trends Storage Appliances Styles
Cabinetry / Storage / Accessories • • Lazy-Susans Drawer inserts Pantry Tilt-out drawers at sinks Roll-out shelves Tray dividers for baking sheets Recycling/pull out waste baskets Spice Racks
Storage designed to fit the user
Tall towers are used to anchor the end of cabinet run. Towers can include drawers below and tray dividers above the built-in appliances.
§ Pull out cutting boards § Sink tilt-out § Spice racks § Plate racks § Pull out waste bins
Accessible pantry designed for easy access.
Counter tops, Sinks and Faucets • Granite, Concrete, Solid Surface • Stainless counters, tile and laminate • Farmhouse sinks (apron fronts) • Solid surface sinks • Three “bowl” sink • Wall mounted faucets • Pot fillers • Faucets “all- in- one” sprayer
Granite is most popular counter top with an undercount sink. These sinks are easy to wipe off crumbs into the sink because there is no raised edges.
Solid surfaces create a seamless and contemporary look.
Concrete Countertops are unique and can be personalized.
Concrete counter tops with integral sinks.
Copper farmhouse sinks are very popular and expensive.
Pot fillers increase functionality. Touch control faucets Teak sinks are a beautiful solution for a clean, contemporary kitchen.
Appliances
Appliance Trends • • • Refrigerator drawers Sinks that are dishwashers Dishwasher drawers Refrigerators with internet access Bright colored appliances (Red, Blue, Yellow) • Wine chillers • Ovens with side opening doors • Ovens that cool and operate via phone app
Wine coolers Espresso machines
Dishwashing drawers
• Wood panel appliance doors
• Wine racks • Warming drawers • Lighted cabinets
New Appliances and trends
Kitchen Styles • Contemporary • Transitional • Traditional
Contemporary
Contemporary
Transitional
Traditional
- Slides: 58