Icono de arquitectos y diseadores la silla Barcelona
Icono de arquitectos y diseñadores la silla Barcelona, modelo nº MR 90, fue diseñada por Mies van der Rohe para el pabellón alemán de la Exposición Internacional de 1929 en Barcelona.
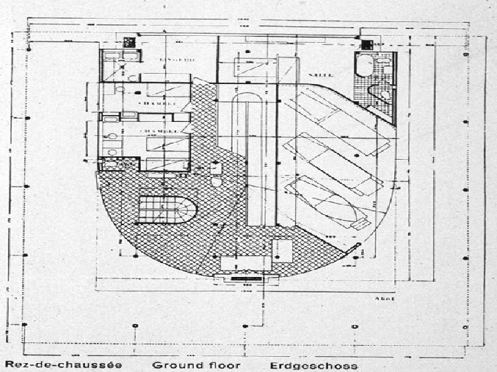
Claseshistoria Zona auxiliar (aseos, despachos) Muro corrido que conecta ambos espacios Estructura principal sostenida sobre ocho pilares metálicos con forma de cruz que forman una estructura rectangular Espacio principal estanque Escaleras de acceso plataforma Escuela de la Bauhaus Mies Van der Rohe Pabellón alemán en Exposición Universal de Barcelona de 1929 Plano Historia del Arte © 2006 Guillermo Méndez Zapata
Claseshistoria Juego de formas ortogonales (perpendiculares entre muros y tejado) Tejado de extremada planitud, avanza en saledizo generando un espacio intermedio exterior-interior Reconstruido en 1986 Elementos de unión (soldaduras) ocultos Muros de roca (mármol, travertino, ónice) o cristal se distribuyen libremente, separados de pilares, definiendo el espacio Estanque potencia sensación de espacios Indefinidos, donde no se sabe qué es interior y qué exterior Escuela de la Bauhaus Mies Van der Rohe Pabellón alemán en Exposición Universal de Barcelona de 1929 Historia del Arte © 2006 Guillermo Méndez Zapata
Claseshistoria Cortina roja, alfombra negraa y muro dorado recrean bandera alemana Diseño de todos los elementos (silla Barcelona de estructura tubular hueca) Distribución libre de pantallas acristaladas y muros que no llegan a unirse, creando espacios diferentes pero sin estar totalmente aislados unos de otros Escuela de la Bauhaus Mies Van der Rohe Pabellón alemán en Exposición Universal de Barcelona de 1929 interior Historia del Arte © 2006 Guillermo Méndez Zapata
Diversos módulos distribuidos asimétricamente (juego en alzado de planos verticales y horizontales) que se interrelacionan. Estructura en forma de doble L o aspa Claseshistoria Zona creativa (bloque de aulas Zona administrativa (Puente) Zona de trabajo talleres Espacio social Espacio privado (sala de reuniones apartamentos y cafetería) Características generales: formas puras, líneas rectas, ausencia de decoración, amplios acristalamientos, adaptación a función, nuevos materiales (cemento armado, acero y vidrio), etc. Integrada en espacio urbano: paralela a una carretera y atravesada por otra Escuela de la Bauhaus Walter Gropius Edificio de la Bauhaus (aérea) Historia del Arte © 2006 Guillermo Méndez Zapata
Claseshistoria Apartamentos con división en ventanales individuales para garantizar espacio privado Amplios acristalamientos corridos para garantizar luminosidad Escuela de la Bauhaus Walter Gropius Sede de la Bauhaus Historia del Arte © 2006 Guillermo Méndez Zapata
Claseshistoria Por debajo circula carretera cantina Pasillo aéreo Escuela de la Bauhaus Walter Gropius Interior Bauhaus Pureza de formas, diafanidad de espacios talleres Historia del Arte © 2006 Guillermo Méndez Zapata
Claseshistoria Características generales de la arquitectura racionalista Eliminación de elementos decorativos Empleo de nuevos materiales: vidrio, hierro, hormigón armado, etc. Con nuevas técnicas (prefabricados) Esqueleto interno permite Ruptura con Predominio de Adaptación del sustitución del muro con cualquier referencia formas geométricas edificio a su función sustentante a estilos del pasado puras (líneas función por muro cortina rectas) (planta libre) acristalados Supresión del pilar de la esquina por ventanas lo dotan de gran ligereza (fachada flotante) Equilibrio, proporción, ritmo armónico Amplios ventanales acristalados formados por retículas de listones de hierro con delgadas columnas de acero como elementos portantes (dotan de gran luminosidad) Cristales funcionan simultáneamente de cierre y de apertura al exterior. Escuela de la Bauhaus Walter Gropius Fábrica Fagus Historia del Arte © 2006 Guillermo Méndez Zapata
Arte del S. XX El Edificio Seagram, ubicado en el 375 de Park Avenue (Nueva York), es una moderna torre de oficinas proyectada por el famoso arquitecto alemán Mies van der Rohe, . El edificio cuenta con 39 pisos en 157 metros de altura y fue construido entre los años 1954 y 1958. Su tipología deja en evidencia la estructura en la fachada, cumpliendo a la vez un rol ornamental, compuesta por vigas de acero y columnas de bronce. Símbolo del mundo industrial contemporáneo, ilustra el lema del arquitecto Menos es más. Mies diseñó su edificio a la manera de las columnas antiguas, con basa (entrada y hall), fuste (bloque principal de oficinas) y capitel (la parte superior del edificio que sirve como remate a la composición).
Claseshistoria Formas geométricas simples y puras (rectangular) Treinta y ocho plantas con ventanales corridos de suelo a techo de bronce y vidrio gris (aumenta sensación de verticalidad) Ejemplo de “arte total” diseñó los elementos interiores Estructura de “huesos y piel”: Esqueleto sustentante de pilares con divisiones y cerramientos de muros mamparas y muros cortinas Edificio retranqueado Escuela de la Bauhaus Mies Van der Rohe Seagram building Historia del Arte © 2006 Guillermo Méndez Zapata
Características generales Claseshistoria Empleo de pilotes que aíslan edificio del suelo Techos planos que permiten terraza jardín Planta libre (pilares separados de muros) de estructura racional Multiplicación de ventanales (en este caso ventanales corridos horizontales) Fachada libre Estructuras para abrir los de hormigón e hierro huecos que se deseen Cuatro lados similares (se rompe organización jerárquica en torno a una fachada principal Situada en centro de jardín, permite a través de ventanas deslizantes contemplar los cuatro ángulos Contraste entre formas cúbicas de primera planta y pared ondulada de azotea Edificio sostenido por pilares de hierro cilíndricos Efectos de claroscuro provocado por retranqueo de planta baja Le Corbusier Villa Saboya Historia del Arte © 2006 Guillermo Méndez Zapata
Claseshistoria Edificio organizado en torno a rampas y escaleras Salón principal y habitaciones conectan con patio con puertas correderas diluyendo frontera interior-exterior Patio de primera planta y azotea como jardín y solarium Planta baja retranqueada, en forma de U con cocheras Le Corbusier Villa Saboya plano Historia del Arte © 2006 Guillermo Méndez Zapata
Claseshistoria Aplicación de su ideal de emplear la arquitectura para beneficio social de la comunidad (reconstrucción tras 2ª Guerra Mundial) Concebido como una ciudad en pequeño (337 viviendas de tipologías diferentes con pasillos-calles interiores) Construcción adaptada a la escala humana. Crea, partiendo de la proporción áurea, el “Modulor”: un canon en torno al metro ochenta, adaptando toda la obra a ese tamaño para que fuese cómodo vivir en ella Último piso y terraza dedicado a zona infantil y de deportes y ocio Empleo de colores primarios para dotarlo de mayor valor estético A media altura dos plantas dedicadas a funciones comerciales y de servicio Ventanales retranqueados Viviendas ensambladas de dos en dos a lo largo de un pasillo que hace de calle interior Alzado sobre pilotes que permiten circular por debajo y también sirven de aparcamientos Deja a la vista el hormigón concebido como elemento bello (nuevo brutalismo) Utilización de formas básicas: cuadrados para plantas y cubos y cilindros en el alzado Le Corbusier Unité d´habitation Marsella Historia del Arte © 2006 Guillermo Méndez Zapata
Claseshistoria Enorme tejado curvo que avanza en saledizo e incorpora espacio exterior (permite celebrar misa en el exterior) Concepción escultórica Abandona buena parte de sus preceptos racionalistas Bóveda invertida (parte central más baja) Contraste cromático paramentos blanco y bóveda de hormigón visto Sensación de dinamismo Le Corbusier Capilla Notre Dame Du Haut De Rochamp Historia del Arte © 2006 Guillermo Méndez Zapata
Claseshistoria Ausencia de organización jerarquizada Planta irregular y ondulante Multitud de ventanas distribuidas libremente, con vidrios de colores, concentran luz en zonas concretas del suelo Le Corbusier Aldea de Chandigarth Interior Historia del Arte © 2006 Guillermo Méndez Zapata
Torre Pirelli, (1958), Pier Luigi Nervi.
- Slides: 39