Fair Housing Act Section 504 Accessibility Requirements For
Fair Housing Act & Section 504 Accessibility Requirements For Construction Presented by: Michele Hutchins U. S. Department of Housing and Urban Development, Office of Fair Housing and Equal Opportunity
FAIR HOUSING LAWS • TITLE VI OF THE CIVIL RIGHTS ACT OF 1964 • FAIR HOUSING ACT OF 1968, AS AMENDED IN 1988 • SECTION 504 OF THE REHABILITATION ACT OF 1973 • THE AMERICANS WITH DISABILITIES ACT OF 1990 (ADA)
Objectives • Have a basic understanding of the design and construction provisions of the Fair Housing Act and Section 504 • Have a basic understanding of the seven requirements of the Fair Housing Act • Have a basic understanding of the Uniform Federal Accessibility Standards (UFAS) • Know how the 2010 ADA Standards relates to Housing
Fair Housing Act Design Guidelines
FHA Design Standards • Design standards apply to buildings constructed for first occupancy on or after March 13, 1991. • Requires all ground floor units to be accessible provided there are 4 or more units in the building and the unit is not multistory. • If the building has an elevator; all units must be accessible.
Seven Basic Requirements 1. Accessible building entrance on an accessible route 2. Accessible and usable public and common use areas 3. Usable doors 4. Accessible route INTO and THROUGH every covered unit 5. Light switches, HVAC controls, electrical outlets, etc. in accessible locations 6. Reinforced walls in bathrooms for later installation of grab bars 7. Usable Kitchens and Bathrooms Note: Either covers all ground floor or all units not just a percent of the units.
Requirement 1 -Accessible Building Entrance on an Accessible Route …covered multifamily dwellings shall be designed and constructed to have at least one building entrance on an accessible route unless it is impractical to do so because of terrain or unusual characteristics of the site (24 CFR 100. 205)
Accessible Route • When designing your accessible route, pay close attention to: – width of route – slope of route – ground and floor surfaces – cross slope – headroom – curb ramps – protruding objects – lift/elevator design
Common Violations Requirement 1 - Accessible Building Entrance on and Accessible Route • Steps at dwelling entrance • Walk exceeds allowable slopes • Failure to have railings and edge protection on slopes greater than 5% and less 8. 33% • Accessible route does not connect to pedestrian arrival area (ie. parking lot) – No curb ramps – Accessible route width, slope and cross slope
Requirement 2 - Accessible and Usable Public and Common Use Areas. . . covered multifamily dwellings with a building entrance on an accessible route shall be designed in such a manner that the public and common use areas are readily accessible to and usable by handicapped persons. (24 CFR 100. 205)
Parking When parking is provided: • Accessible parking on an accessible route must be provided for residents and guests • Must be located on shortest possible accessible route to the accessible entrance • Accessible spaces must be at least 96” wide and have an adjacent access isle that is a minimum of 60” wide • Must have curb ramps to provide an accessible route
Common Violations Requirement 2 - Accessible and Usable Public and Common Use Areas • Parking - Sign Height (60” to the bottom of sign) -No access aisle or not correct width -If provided different types of parking: surface, carport, garage, have one of each type. • Curb ramp location, slope and cross slope • Height of mailboxes • Common area amenities – picnic tables, dumpsters, playgrounds
Requirement 3 -Usable Doors. . . covered multifamily dwellings with a building entrance on an accessible route shall be designed in such a manner that all the doors designed to allow passage into and within all premises are sufficiently wide to allow passage by handicapped persons in wheelchairs. (24 CFR 100. 205)
Requirement # 3: Usable Doors • Common use area doors, including primary entrances to covered units, must have a clear opening of at least 32” (accessible doors) – Measured from door to door stop • Doors inside covered units designed for passage must have a clear opening of a “nominal” 32 inches (at least 31 5/8”) (usable doors)
Common Violations Requirement 3 - Usable Doors • Not enough maneuverability space on latch side of door • Sliding doors and other secondary doors do not provide nominal 32” opening (31 5/8”) • Sliding door and many back doors have thresholds that are too high and not beveled • Walk in closet doors clear opening width not correct
Requirement 4 - Accessible Route Into and Through the Covered Unit. . . covered multifamily dwellings with a building entrance on an accessible route shall be designed and constructed in such a manner that all premises within covered multifamily dwelling units contain an accessible route into and through the covered dwelling unit. (24 CFR 100. 205)
Accessible Route Width • Accessible route from accessible entrance must connect to required clear floor space outside of the covered unit • As accessible route passes into the unit width can be reduced to 32” at the entry doorway (accessible door) • Throughout the unit travel pathway must be at least 36” wide except when passing through doorways (usable doors), where it may be reduced to 32” nominal width (31 5/8”)
Thresholds and Accessible Routes and Exterior Doors • Different level change tolerances base on – Primary or secondary door – Type of construction material at landing • Permeable or impermeable
Common Violations Requirement 4 - Accessible Route into and through the Unit • Level changes at primary entrances exceed the allowable ½” between finished floor and exterior entry landing • Thresholds exceed the maximum allowable height of ¾” and are not beveled
Requirement 5 Light Switches, Electrical Outlets, Thermostats, and Other Environmental Controls in Accessible Locations. . . covered multifamily dwellings with a building entrance on an accessible route shall be designed and constructed in such a manner that all premises within covered multifamily dwelling units contain light switches, electrical outlets, thermostats and other environmental controls in accessible locations. (24 CFR 100. 205)
Requirement # 5: Accessible Environmental Controls, Switches, and Outlets • All operable parts must be at least 15 inches above the floor and no higher than 48 inches above the floor • Some switches and outlets located over counters must be lower than 48 inches • Switches on appliances, circuit breakers, and outlets dedicated for certain appliances are not covered
Common Violations Requirement 5 - Accessible Environmental Controls • Outlets placed too low – Outlets must be located at least 15” above finished floor • Switches are too high Thermostats and other environmental switches are placed higher than 48” above the finished floor. • Outlets and Switches over countertops
Requirement 6 - Reinforced Walls for Grab Bars. . . covered multifamily dwellings with a building entrance on an accessible route shall be designed and constructed in such manner that all premises within covered multifamily dwelling units contain reinforcements in bathroom walls to allow later installation of grab bars around toilet, tub, shower stall and shower seat, where such facilities are provided. (24 CFR 100. 205)
Requirement # 6: Reinforced walls in bathrooms for grab bars • Must have reinforcements in the walls for future installation of grab bars in ALL bathrooms in specific locations around: – Toilets – Bathtubs – Showers
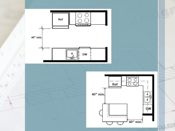
Requirement 7 - Usable Kitchens and Bathrooms. . . covered multifamily dwellings with a building entrance on an accessible route shall be designed and constructed in such a manner that all premises within covered multifamily dwelling units contain usable kitchens and bathrooms. . . such that an individual in a wheelchair can maneuver about the space. (24 CFR 100. 205)
Requirement #7: Usable Kitchens and Bathrooms • 40” between • U shaped kitchens countertops and require a 60” walls turning space or • 30 X 48 clear floor knee space under the sink or cook top space: – Parallel to and centered at the base of the U on the kitchen sink, range, and at least one sink in the bathroom – Parallel to or perpendicular to other kitchen appliances
Usable Bathrooms • Must have accessible route to and into the bathroom • Switches, outlets, and controls must be accessible • Reinforced walls for grab bars • Clear floor space – Allows user in wheel chair to enter the room, close the door, reopen the door and exit the room – Allows user to approach and use fixtures
Common Violations Requirement 7 - Usable Kitchens and Bathrooms • Kitchen does not have 30” x 48” clear floor area parallel to and centered on kitchen sink and range • Ensuring 40” space is maintained between counter and refrigerator • Sinks in bathrooms do not have 30” x 48” clear floor area parallel to and centered on the sink
OF THE REHABILITATION ACT OF 1973
PHYSICAL ACCESSIBILITY Existing Housing Programs New Construction Alterations
New Construction • At least 5% of units must be fully accessible to people with mobility impairments • An additional 2% of units must be accessible to people with vision and hearing impairments
Alterations • Federally-funded housing providers are required to make necessary structural changes in existing facilities when nonstructural options are not available. • Make every effort to achieve program accessibility and expeditiously complete any remaining necessary structural changes.
Parking • Minimum number of accessible parking spaces - based on the total number of parking spaces. • Accessible parking spaces - designated as reserved by signs showing the international symbol of accessibility. • Signs - located so they cannot be obscured by vehicles parking in the spaces.
Accessible Routes • Exterior routes – parking access aisles, passenger drop-off areas, curb ramps, walks, ramps, platform lifts, clear floor space at entries • Interior Routes – corridors, floors, ramps, elevators, platform lifts, clear floor space at fixtures and elements.
Problem curb ramps • Are too steep • Have steep flared edges • Are accessed only from heavily trafficked areas • Curb ramps no more than 8. 33% slope • Flares no more than 10% slope
Ramps • Walking surface in an accessible space that has a running slope greater than 5% • Ramps cannot exceed 8. 33% slope • Cross slope cannot exceed 2%
Identify inaccessible elements
Doors • Minimum clear width of 32 inches – adult wheelchairs = 27 -32 inches wide – walkers = 32 inches wide – 32 inches = the distance between crutch tips of an average adult male using crutches • Push bars and other door hardware allowed to protrude into clear width if mounted high enough
Thresholds • Exterior sliding doors - ¾ inch threshold • Other types of doors - ½ inch threshold • Raised thresholds must be beveled
Water Closets (Toilets) • • • Access and safe use of WCs depends on: proper seat height – 17”-19” Centerline of toilet to wall exactly 18” appropriately placed grab bars appropriately placed toilet paper usable and easy-to-reach flush controlswide side of toilet sufficient and appropriate clear floor space
Grab Bars Strategically located to provide assistance to users during transfers • Required both to the side and the back of the WC • 33 inches to 36 inches high • Side grab bar: minimum 42 inches long, forward end 54 inches from back wall • Rear grab bar: minimum 36 inches long
Bathtubs • Sufficient clear floor space • In-tub seat or seat at the head of the tub • Grab bars installed or structural reinforcement for grab bars • Faucet controls offset to the outside of the tub to minimize the reach into the tub • Shower spray unit with a hose at least 60 inches long
Any Problems With This Bathroom?
Kitchens • Clearances between opposing base cabinets, counter tops, appliances, or walls: 40 inches minimum, 60 inches in U-shaped kitchens • Clear floor space at least 30 inches by 48 inches at all appliances in the kitchen • At least one 30 -inch section of counter has to be mounted no higher than 34 inches high
Kitchens • Sink and adjacent counter of at least 30 inches wide mounted no higher than 34 inches high • Controls for ranges and cook-tops must not require reaching across burners • Ranges and cook-tops with pushbutton controls • Ovens self-cleaning OR located next to adjustable height counter, knee space below
HUD allows Alternate Accessibility Standards • Accessibility requirements for federally Subsidized Housing recipients – use Uniform Federal Accessibility Standards (UFAS) to meet the accessibility requirements of Section 504. • As of May 23, 2014 – Federally subsidized Housing recipients may use the 2010 ADA standards with the Exceptions. • http: //portal. hud. gov/hudportal/HUD? src=/p ress/press_releases_media_advisories/20 14/HUDNo_14 -057
FAIR HOUSING Fair Housing: Its Not an Option IT’S THE LAW
QUESTIONS?
For more information contact: Michele Hutchins, Equal Opportunity Specialist Office of Fair Housing & Equal Opportunity U. S. Dept. of Housing & Urban Development 125 S. State Street, Room 3001 Salt Lake City, UT 84138 (801) 524 -6097 -Direct line (801) 524 -6909 -TDD/TTY line 1 -800 -877 -7353 – Denver Toll Free email: michele. hutchins@hud. gov
- Slides: 64