Ceiling Framing Unit 32 Ceiling Framing Basic methods
Ceiling Framing Unit 32
Ceiling Framing Basic methods of roof framing Conventional roof construction Trussed roof construction Prefabricated assemblies Houses may have a large open interior when trusses are used Common members of trusses Gussets King Posts Upper chord Lower chord Webs
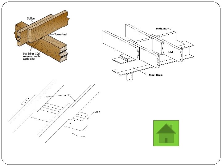
Ceiling Framing Ceiling Joists Parallel beams that support ceiling loads From the ceiling of the house and support the ceiling finish Can act as floor joists for an attic Should be spaced 16” or 24”OC except for the first two When joined over partitions a splice may be nailed on either side of the joist Also may be joined so the joists lap each other Joists must be supported by a beam Long ceiling spans can be given extra support by constructing a strong back
Ceiling Framing Ceiling Joists (continued) Size of the ceiling joists depends on Kind and grade of the wood Distance they must span Load they must carry Form the ceiling of the house and support the ceiling finish Can act as floor joists for an attic Should be spaced 16” or 24”OC except for the first two When joined over partitions a splice may be nailed on either side of the joist
Joist spacing for spans, sizes, and grades of lumber
- Slides: 18