Assembly drawings of Engine parts By Aditya Vemula
Assembly drawings of Engine parts By, Aditya Vemula Asst. Prof of ME
Introduction to Assembly drawings • A machine is an assembly of various links or parts. • An assembly drawing is one which represents various parts of a machine in their working position. • These drawings are classified as design assembly drawings, working assembly drawings, sub-assembly drawings, installation assembly drawings, etc. • An assembly drawing made at the design stage while developing a machine is known as design assembly drawing.
Engine parts • • Stuffing Box Crosshead Eccentric Piston Assembly
Stuffing Box • It is used to prevent loss of fluid such as steam, between sliding or turning parts of machine elements. • In a steam engine, when the piston rod reciprocates through the cylinder cover; stuffing box provided in the cylinder cover, prevents leakage of steam from the cylinder.
Parts list of Stuffing Box
Crosshead
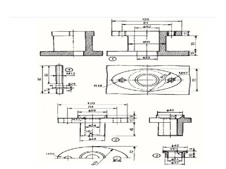
Eccentric • It is used to provide a short reciprocating motion, actuated by the rotation of a shaft. • Eccentrics are used for operating steam valves, small pump plungers, shaking screens, etc.
Details of an Eccentric
Piston assembly • A piston is cylindrical in form and reciprocates in a cylinder. • The petrol engine piston is generally die cast in aluminium alloy.
Piston of a petrol engine
Thank you
- Slides: 12