A 1 STANOVANJSKE STAVBE IZBIRNI 2009 2010 POGLED
A 1 - STANOVANJSKE STAVBE - IZBIRNI 2009 – 2010 POGLED NAPREJ kalčič
Asistent od 1973 naprej Profesor od 1992 naprej Slap Rinka na koncu Logarske doline
MOJ PRIJATELJ INTI ME SPREMLJA TUDI NA SLUŽBENIH OBVEZNOSTIH
TUDI V ROVTARSKEM HRIBOVJU JE Z MANO IN Z MOJO ŽIVLJENJSKO SOPOTNICO
INTI, BOG SONCA, IZJEMNO UŽIVA Z NAMI V NARAVI
Kalčič v Dolomitih – spodaj brez … Kalčič o starem NUK-u
Z MOJO SOPOTNICO IZJEMNO UŽIVAVA NA SMUČANJU V DOLOMITIH
VČASIH JE PEKLENSKI MRAZ, 30 pod ničlo, A JE VSEENO IZJEMEN UŽITEK
TUDI MOJA SOPOTNICA UŽIVA V SMUČANJU / tudi pri 30 pod ničlo /
MOJA ŽIVLJENJSKA SOPOTNICA V GRČIJI, KJER S PRIJATELJI NEIZMERNO UŽIVAMO
PLAŽA “ANTHONY QUINN” …PO FILMU GRK ZORBA …
BOGENVILIJE V TURČIJI
VSAKO LETO SE ZA PUSTA S PRIJATELJI ZAMASKIRAMO IN POVESELIMO
MOJA MALENKOST, MASKA “COMPUTER SCIENCE INŽENIR”
Moja malenkost s pravo čarovnico !!? !!
FOTOGRAFIRANJE PODZEMNIH BIVALIŠČ V TUNISU
PREDAVANJE NA KONGRESU V ZDRUŽENIH ARABSKIH EMIRATIH, SUPER…
Predavanja v Gost Martuljku s prof. Juvancem so bila izjemno kreativna in vseskozi polna energije in prečudovitih spoznanj: Alpe - Adria
Haus Drexler, Pinkafeld / Avstrija, Burgenland
Zakonca Drexler v razgovoru s prof. Brezarjem
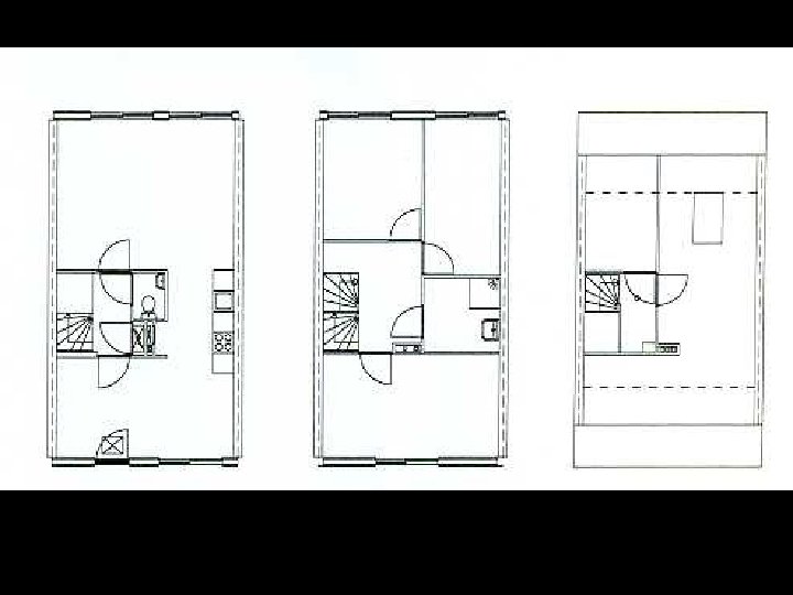
TLORIS PRITLIČJA
TLORIS NADSTROPJA
PREREZI
Arh. LENKO PLEŠTINA DRUŽINSKA HIŠA BUTKOVIĆ ZAGREB – PANTOVČAK DRŽAVNA NAGRADA REPUBLIKE HRVATSKE “Vladimir Nazor” ZA NAJBOLJŠO ARHITEKTURO LETA 2003 NA HRVAŠKEM
ZAGREB
OŽJI CENTER ZAGREBA
Prof. Dr. LENKO PLEŠTINA, Arhitektonski fakultet Zagreb, dekan AF
V RAZGOVORU Z AVTORJEM PROJEKTA “IN SITUM”
NEKAJ POGLEDOV:
PICTURE WINDOW HOUSE Shizuoka prefecture 2002 SHIGERU BAN
Situacija Pogled na streho objekta
PREREZ OBJEKTA
POGLEDI V NOTRANJOST OBJEKTA
PRITLIČJE – VHOD / GARAŽE 1. NADSTROPJE / SPALNI DEL
2. NADSTROPJE – BIVALNI DEL Z ATRIJEM IN BALKONOM
ATRIJ BALKON
Pogled od zunaj
DUNAJ - SARGFABRIK
HUNDERTWASSER: HAUS DUNAJ
POGLED NAPREJ: NEKAJ PRIMEROV NOVIH SVEŽIH PROJEKTANTSKIH IDEJ IN REŠITEV
DUNAJ
ZAGREB - HRVATSKA
Baumschlager & Eberle
Baumschlager & Eberle
Hans jörg Tschom: Stan. naselje Krummerweg, Graz 1988
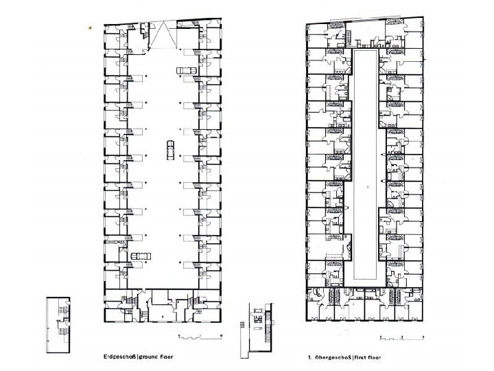
DONAUCITY ARHITEKTI: Heinz Tesar, Wilhelm Holzbauer, Harry Seidler & Ass. , Hans Hollein, Coop Himmelblau, Gustav Peichl, Boris Podrecca, Rudolf F. Weber, Elke Delugan – Meissl & Roman Delugan. . . In drugi
MAKETA PROJEKTA DONAUCITY
SITUACIJA
POGLED IZ ZRAKA
PENTHAUS
Philip Johnson: Glass House, New Canaan, Connecticut / 1949
Mies Van Der Rohe: Farnsworth House, Plano, Illinois, 1946 / 51
Interier te iste hiše
Günther Domenig: Steinhaus, Steindorf ob Osojskem jezeru. Avstrija
Szyszkowitz – Kowalski: Stanovanjsko naselje pri Gradcu
Na koncu pa spet naša pastirska bajta na Veliki planini
- Slides: 175